Three-storey family home with canalside views and two parking spaces..
Canal-side views from living room bay window
Modern kitchen-diner with French doors to south-easterly garden
Master bedroom with dressing area and en suite
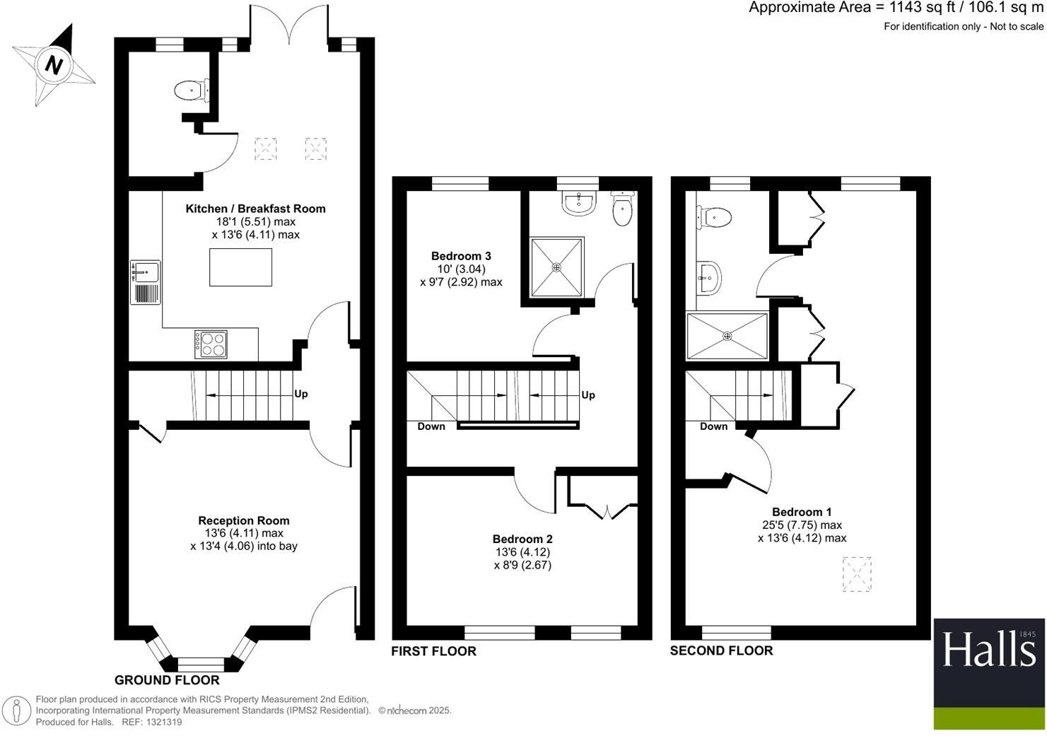
Approximately 1,143 sq ft across three storeys
Two allocated off-street parking spaces with gated access
Small plot and low-maintenance rear garden
Area flagged as very deprived with high local crime rate
Double glazing installed before 2002; check windows/heating condition
This three-storey, three-bedroom mid-terraced townhouse sits canal-side and is arranged over approximately 1,143 sq ft. The bright living room with a front bay window takes advantage of waterside views, while a modern kitchen-diner opens via French doors to a private south-easterly, low-maintenance rear garden — practical for family life and outdoor seating. The top-floor master offers a dressing area and en suite, giving a useful separation of living and sleeping space for a growing household.
Built around 1996–2002 and offered freehold, the property includes two allocated off-street parking spaces with gated access. Double glazing was installed before 2002 and the home uses mains gas central heating via boiler and radiators. The layout and condition are presented as move-in ready, making it suitable for buyers who prefer minimal immediate refurbishment.
Buyers should note material local factors: the area is described as very deprived with a high local crime rate, and the plot is relatively small. While the canalside position and nearby green space are strong selling points, prospective purchasers should satisfy themselves on local services, school suitability, and security requirements before committing. An internal inspection is recommended to judge the condition and the views firsthand.
3 bedroom terraced house for sale in Butler Best Way, Kidderminster, DY10 — £269,500 • 3 bed • 2 bath • 635 ft²
4 bedroom town house for sale in Georgian Way, Kidderminster, Worcestershire, DY10 — £290,000 • 4 bed • 3 bath • 1098 ft²
3 bedroom end of terrace house for sale in Waterside Grange, Kidderminster, Worcestershire, DY10 — £230,000 • 3 bed • 2 bath • 614 ft²
3 bedroom end of terrace house for sale in Ox Bow Way, Kidderminster, DY10 — £280,000 • 3 bed • 2 bath • 1151 ft²
3 bedroom terraced house for sale in Westcott Road, Kidderminster, DY10 — £220,000 • 3 bed • 2 bath • 807 ft²
4 bedroom terraced house for sale in Round Hill Wharf, Kidderminster, DY11 6US, DY11 — £275,000 • 4 bed • 2 bath • 1253 ft²


































































