Three-bedroom home with garden, ensuite and two reception rooms near beach.
Chain free and recently fully refurbished throughout
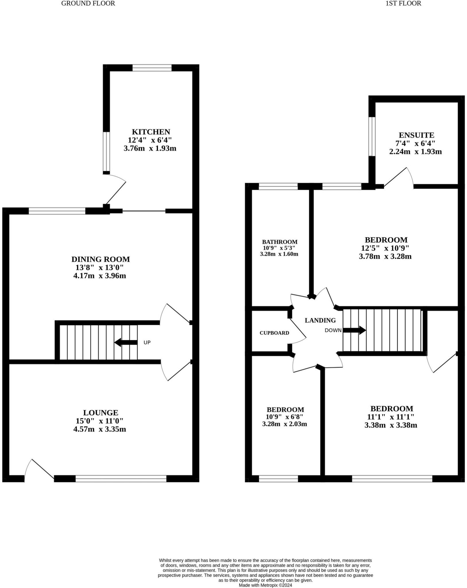
This recently refurbished three-bedroom terraced house in Caister-on-Sea offers comfortable living just moments from the coast. The ground floor has two reception rooms — a bright 15ft lounge and a generous dining room — plus a modern galley kitchen with rear access. Upstairs the master benefits from an ensuite and there is a separate family bathroom with a full-length bath and overhead shower.
Practical details suit everyday life: gas central heating with a new boiler, double glazing, and an EPC rating of D. The property is freehold and being sold chain free, making it straightforward for buyers looking to move quickly. The enclosed rear garden is a useful outdoor space, while the house’s footprint (approx. 947 sq ft) is typical for a period terrace of this age.
Buyers should note the house’s Victorian construction with solid brick walls — external wall insulation is assumed absent — so additional insulation works could be considered to improve energy performance. The plot is small and on-street parking is likely; there is no specific off-street parking mentioned. EPC D and assumed solid-wall construction are realistic factors for budgeting longer-term running costs and any comfort upgrades.
Overall this property will suit first-time buyers or families seeking a well-presented seaside village home with modern fixtures and good local schools nearby. It combines immediate move-in readiness with scope for targeted improvement (insulation, aesthetic personalisation) to enhance comfort and value over time.
3 bedroom terraced house for sale in Beach Road, Caister-On-Sea, NR30 — £230,000 • 3 bed • 1 bath • 1098 ft²
3 bedroom terraced house for sale in High Street, Caister-On-Sea, Great Yarmouth, NR30 — £200,000 • 3 bed • 1 bath • 1002 ft²
3 bedroom terraced house for sale in Tamarisk Drive, Caister-on-Sea, Great Yarmouth, Norfolk, NR30 — £220,000 • 3 bed • 3 bath • 797 ft²
2 bedroom end of terrace house for sale in Yarmouth Road, Caister-On-Sea, NR30 — £200,000 • 2 bed • 1 bath • 980 ft²
3 bedroom terraced house for sale in Seabird Close, Caister-on-sea, NR30 — £230,000 • 3 bed • 1 bath
3 bedroom end of terrace house for sale in Lacon Road, Caister-on-sea, NR30 — £260,000 • 3 bed • 2 bath • 1051 ft²






























































