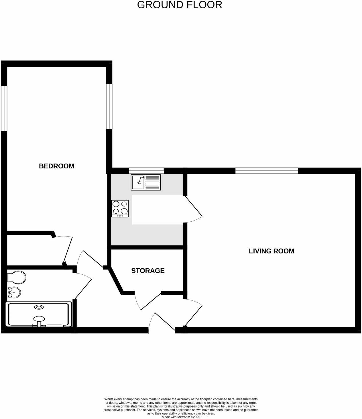
**Standout Features:**
- One-bedroom first floor retirement apartment in a gated development
- Situated just 0.5 miles from Braintree Town Centre
- Spacious living/dining area with modern kitchen; integrated appliances
- Generous double bedroom with dual aspect windows and walk-in wardrobe
- Fully tiled shower room/wet room
- Maintained landscaped gardens, residents lounge, and guest suite
- CCTV entry and 24-hour emergency call systems for added security
- Chain-free with 115 years remaining on the lease
- Off-street parking available (permit required)
This spacious one-bedroom, first-floor retirement apartment in a secure, gated community is perfect for those over 60 seeking comfort and convenience. Enjoy a bright and airy living/dining room that flows seamlessly into a modern kitchen, complete with integrated appliances and ample storage. The generously sized double bedroom boasts dual aspect windows and a substantial walk-in wardrobe, while the fully tiled shower room features easy accessibility.
Residents can take advantage of beautifully maintained communal gardens, a welcoming lounge, and the convenience of an on-site House Manager. Safety is paramount with a CCTV entry system and a 24-hour emergency call service. With Braintree Town Centre just a short walk away, you’ll have access to a variety of shops and amenities. This property comes chain-free, with excellent potential for long-term living or investment. Don't miss your chance to secure this desirable retirement option!
1 bedroom retirement property for sale in Railway Street, Braintree, CM7 — £100,000 • 1 bed • 1 bath • 467 ft²
1 bedroom house for sale in Railway Street, Braintree, CM7 — £70,000 • 1 bed • 1 bath • 343 ft²
1 bedroom apartment for sale in Chinnerys Court, Braintree, CM7 — £220,000 • 1 bed • 1 bath • 625 ft²
1 bedroom apartment for sale in Chinnerys Court, Panfield Lane, Braintree, CM7 — £245,000 • 1 bed • 1 bath • 689 ft²
2 bedroom apartment for sale in Railway Street, Braintree, CM7 — £160,000 • 2 bed • 1 bath • 840 ft²
2 bedroom apartment for sale in Railway Street, Braintree, CM7 — £80,000 • 2 bed • 1 bath • 819 ft²










































































