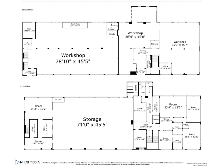
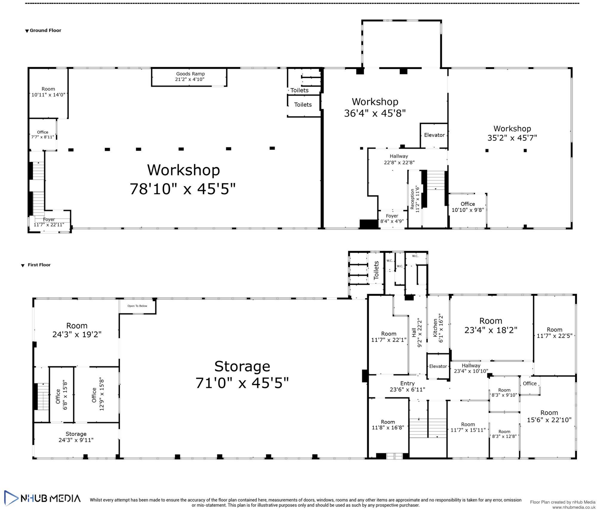
**Standout Features:**
- **Size:** 14,000 sq ft of industrial space across two buildings
- **Tenure:** Freehold; chain-free sale
- **Current Income Potential:** Building Two generating £50,000 per annum from tenants
- **Investment Opportunity:** Building One offers potential rental income of £25,000+ per annum
- **Parking:** Gated rear access with shared loading bay
- **Planning Potential:** Possible residential conversion subject to planning permissions
**Concerns:**
- **Location Crime:** Above-average crime rates in the area
- **Area Deprivation:** Classified as deprived; neighborhood characteristics may affect desirability
This exceptional freehold commercial property in Leicester is an outstanding investment opportunity, boasting 14,000 sq ft split between two distinctive buildings. The first building, currently unoccupied, is primed for immediate business use or rental with a projected income of over £25,000 per annum. The second building provides reliable income with current tenants generating £50,000 annually. The gated rear access and located in a bustling industrial area ensures maximum convenience for businesses.
This versatile property not only offers a significant return on investment but also presents potential for residential conversion (dependent on planning permissions), allowing for further development in a prime locality near excellent transport links. Although situated in an area with above-average crime and categorized as deprived, the property’s unique appeal lies in its potential and flexibility, making it a compelling choice for savvy investors, entrepreneurs, or those exploring residential prospects. Secure your viewing today and explore the vast opportunities this property offers!
Light industrial facility for sale in 1 Hallaton Street, Leicester, LE2 8QY, LE2 — £1,950,000 • 1 bed • 1 bath
Industrial development for sale in Haynes Road, Leicester, LE5 — £1,000,000 • 1 bed • 1 bath • 13068 ft²
Light industrial facility for sale in 31-35 Knighton Lane, Leicester, LE2 8BG, LE2 — £425,000 • 1 bed • 1 bath • 2018 ft²
Commercial property for sale in Bridge Road, LE5 — £1,650,000 • 1 bed • 15 bath • 7793 ft²
Residential development for sale in Eastgate House, 19-23 Humberstone Road, Leicester, Leicestershire, LE5 — £2,400,000 • 1 bed • 1 bath • 23163 ft²
Light industrial facility for sale in 18-20 York Road, Leicester, Leicestershire, LE1 — £500,000 • 1 bed • 1 bath • 3588 ft²


























































