Refurbished three-bedroom terrace near Mellows Park and Wallington station.
Chain-free Victorian mid-terrace, recently refurbished throughout
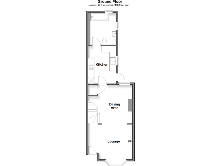
This chain-free Victorian mid-terrace on Tharp Road has been recently refurbished and is ready to move into. The house keeps period character with a large open-plan lounge/dining room and bay window, while updated finishes make day-to-day living straightforward.
Set close to Mellows Park and within easy reach of Wallington High Street and train station, the location suits families seeking good local amenities and highly rated schools. Three bedrooms and a private rear garden provide practical space for children, home working and outdoor play.
Practical notes: the property is solid-brick (original construction) so wall insulation is not confirmed and the double-glazing install date is unknown. There is a single family bathroom and a relatively small plot, which are typical of Victorian terraces but worth considering for growing families. Buyers should verify tenure, any past alterations, and appliance/service conditions with their solicitor.
Overall this is a well-presented, newly renovated period home in an affluent, low-crime neighbourhood. It will particularly appeal to families wanting move-in-ready accommodation near good schools, local parks and transport links, while offering scope to add value with further insulation or sympathetic improvements.
4 bedroom terraced house for sale in Tharp Road, Wallington, SM6 — £585,000 • 4 bed • 2 bath • 1216 ft²
3 bedroom terraced house for sale in Mellows Road, Wallington, SM6 — £475,000 • 3 bed • 1 bath • 907 ft²
3 bedroom end of terrace house for sale in Mellows Road, Wallington, SM6 — £500,000 • 3 bed • 1 bath • 777 ft²
3 bedroom terraced house for sale in Tharp Road, Wallington, SM6 — £480,000 • 3 bed • 1 bath • 789 ft²
3 bedroom terraced house for sale in Westcroft Road, Wallington, Surrey, SM6 — £575,000 • 3 bed • 2 bath • 1341 ft²
2 bedroom terraced house for sale in Upper Road, Wallington, Surrey, SM6 — £395,000 • 2 bed • 1 bath • 650 ft²


















































































