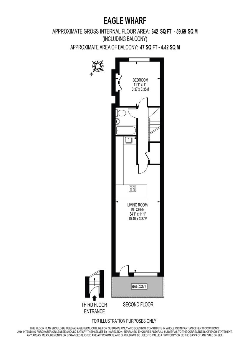
**Standout Features:**
- Newly renovated one-bedroom warehouse conversion
- Spacious luxury kitchen with large breakfast bar
- Private covered balcony overlooking Courage Yard
- Secure underground parking
- On-site porter and lift access to all floors
- Located moments from Tower Bridge
**Concise Summary:**
Discover modern urban living in this stunning one-bedroom warehouse conversion, perfectly situated in the historic Shad Thames area, just steps from Tower Bridge. Offering 642 square feet of stylish, newly refurbished space, this apartment features a luxurious kitchen complete with a spacious breakfast bar and elegant comfort lighting that creates a warm ambiance. Enjoy the tranquility of your private balcony while overlooking vibrant Courage Yard.
The property boasts secure underground parking, an on-site porter, and convenient access to transport links, including London Bridge mainline and underground services. Experience the cosmopolitan lifestyle with a plethora of nearby bars, restaurants, and shops within walking distance. Ideal for professionals or as a savvy investment opportunity, this apartment combines contemporary living with a rich historical backdrop. Don't miss your chance to own a piece of London; arrange a viewing today to envision your future in this uniquely charming home.
Note: While the area is affluent, be advised that crime rates are above average—an important consideration for potential buyers.
1 bedroom apartment for sale in Eagle Wharf Court, Lafone Street, London, SE1 — £585,000 • 1 bed • 1 bath • 713 ft²
2 bedroom apartment for sale in Boss House, Shad Thames, SE1 — £725,000 • 2 bed • 2 bath • 800 ft²
2 bedroom apartment for sale in Boss House, Shad Thames, SE1 — £699,995 • 2 bed • 2 bath • 882 ft²
1 bedroom apartment for sale in Butlers & Colonial Wharf, Shad Thames, SE1 — £675,000 • 1 bed • 1 bath • 875 ft²
1 bedroom barn conversion for sale in Boss Street, London, SE1 — £650,000 • 1 bed • 2 bath • 741 ft²
1 bedroom flat for sale in Tamarind Court,
18 Gainsford Street, SE1 — £550,000 • 1 bed • 1 bath • 712 ft²


















































