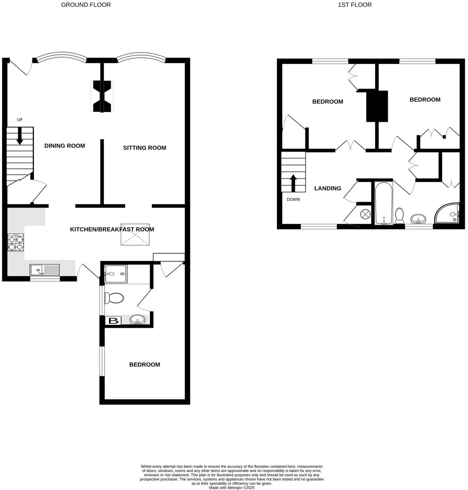
**Standout Features:**
- Charming double-fronted Georgian terraced home
- Three spacious bedrooms with sea views
- Enclosed garden and single garage
- Generous living spaces including two reception rooms
- Recent partial double glazing and gas-fired central heating
- Located in a sought-after seafront area with convenient access to amenities
- Awaiting Energy Performance Certificate (EPC) rating
**Summary:**
This charming double-fronted Georgian home on The Strand in Walmer offers an enticing blend of period character and modern comfort. Boasting three generous bedrooms, including two upstairs with stunning sea views, this property is ideal for families seeking both space and style. The ground floor features light-filled reception rooms and a well-appointed kitchen/breakfast area, complemented by practical amenities like a convenient shower room.
The enclosed rear garden provides a private outdoor retreat, while the single garage offers additional storage or workshop potential. Enjoy the peace and tranquility of seaside living in a prime location, close to local shops, parks, and schools rated 'Good' by Ofsted.
With its desirable features and renovation potential, this property is perfect for families, first-time buyers, or investors. Don’t miss out on this exceptional opportunity to own a piece of Walmer's coastal charm—schedule your viewing today!
5 bedroom terraced house for sale in The Strand, Walmer, Deal, Kent, CT14 — £1,075,000 • 5 bed • 5 bath • 1626 ft²
2 bedroom terraced house for sale in The Strand, Walmer, Deal, Kent, CT14 7DY, CT14 — £500,000 • 2 bed • 2 bath • 1460 ft²
3 bedroom end of terrace house for sale in Campbell Road, Walmer, Deal, Kent, CT14 — £600,000 • 3 bed • 2 bath • 1432 ft²
3 bedroom terraced house for sale in Admiralty Mews, The Strand, Walmer, Deal, CT14 — £745,000 • 3 bed • 3 bath • 1574 ft²
2 bedroom end of terrace house for sale in The Strand, Walmer, Kent, CT14 7DY, CT14 — £500,000 • 2 bed • 2 bath • 1197 ft²
2 bedroom property for sale in Walmer, CT14 — £355,000 • 2 bed • 1 bath • 994 ft²














































































