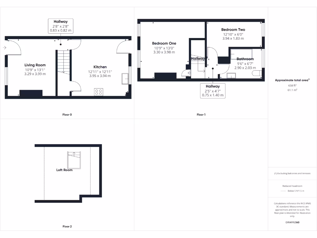
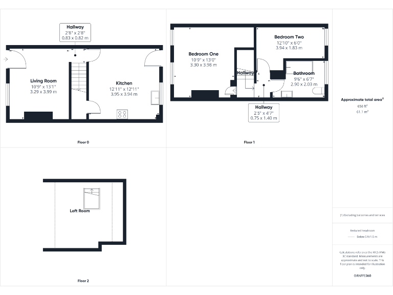
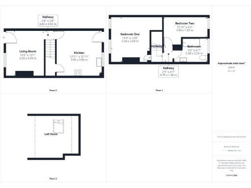
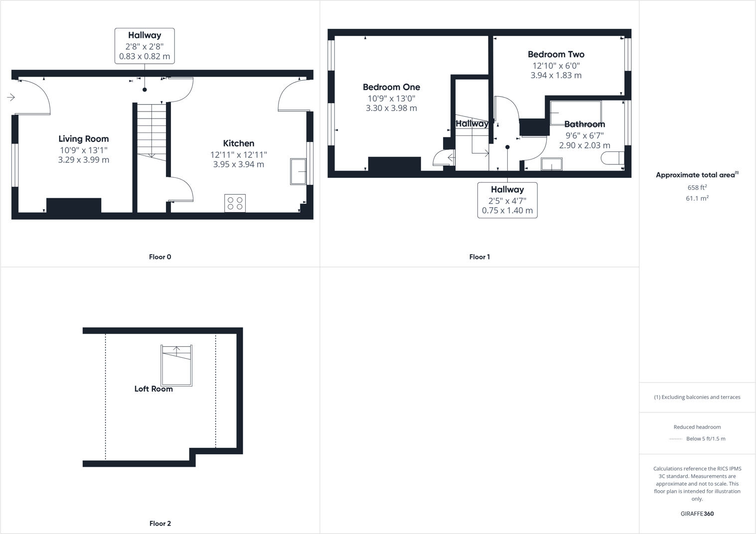
Compact, practical starter home in a well-connected neighbourhood.
Two double bedrooms with an additional usable loft room
Newly fitted kitchen with integrated appliances and cellar storage
Enclosed low-maintenance garden and allocated off-street parking
Garage nearby available to rent or buy separately (not included)
Double glazing and gas central heating; efficient running costs
Small plot and average-sized rooms—compact Victorian terrace
Stone walls likely have no cavity insulation; upgrade may be needed
Council tax very cheap; area classified as affluent and well connected
This two-bedroom mid-terrace on Dewsbury Road offers a ready-to-move-in starter home with period character and practical modern upgrades. The property benefits from a newly fitted kitchen, double glazing and gas central heating, making day-to-day living comfortable and economical. A usable loft room and cellar add unexpected storage and flexible space for home working or hobbies.
Outside, the low-maintenance enclosed garden and allocated off-street parking are genuine pluses for urban living; there is also a nearby garage available to rent or buy separately. Local schools, shops and good transport links make the location convenient for commuting and family life. Council tax is described as very cheap, which helps running costs for first-time buyers.
Be clear that this is a compact Victorian terrace: plot size is small and rooms are average-sized. The stone walls are original and likely uninsulated, so installing wall insulation could improve comfort and energy performance. The property would suit buyers looking for a straightforward, economical home or an investor seeking a rental in an affluent, well-connected area.
A viewing is recommended to assess room proportions, the loft’s usability and any insulation works you may wish to carry out. The layout and included appliances make this a practical, low-fuss purchase for someone starting out or downsizing from a larger home.
2 bedroom end of terrace house for sale in Woodland View, Wakefield, WF3 — £174,000 • 2 bed • 1 bath • 721 ft²
2 bedroom terraced house for sale in Manor Road, Ossett, West Yorkshire, WF5 — £170,000 • 2 bed • 1 bath • 715 ft²
2 bedroom terraced house for sale in Dewsbury Road, Wakefield, WF12 7JN, WF12 — £172,500 • 2 bed • 1 bath • 634 ft²
2 bedroom end of terrace house for sale in Manns Buildings, WF17 — £130,000 • 2 bed • 1 bath • 581 ft²
2 bedroom terraced house for sale in Beech Street, Tingley, WF3 1RW, WF3 — £190,000 • 2 bed • 1 bath • 861 ft²
3 bedroom terraced house for sale in Brewery Lane, Dewsbury, West Yorkshire, WF12 — £200,000 • 3 bed • 1 bath • 1098 ft²


























































