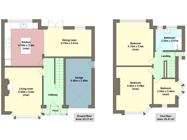
**Standout Features:**
- Traditional semi-detached property with three spacious bedrooms
- Modern shower room with high-quality sanitaryware
- Inviting lounge with feature fireplace and original parquet flooring
- Expansive kitchen/family room with quartz work surfaces and built-in appliances
- Well-kept gardens at both front and rear
- Off-road parking with a driveway for multiple vehicles and single garage
- Excellent location near Huyton Village, offering easy access to public transport and local amenities
This charming traditional semi-detached home beautifully blends classic character with modern living. Boasting three generous bedrooms and a contemporary shower room, it offers ample space for families seeking comfort and convenience in a suburban setting. The entrance hall welcomes you with its original parquet flooring, leading into a bright lounge that showcases a feature fireplace and large bay window. The heart of the home is the impressive open-plan kitchen/family room, perfect for gatherings and equipped with stylish quartz countertops and top-notch appliances.
Outside, you’ll find a lovely garden ideal for outdoor enjoyment, complemented by a driveway accommodating several vehicles and a handy single garage. While the local area does face some socio-economic challenges, the property’s features and its proximity to essential amenities make it an attractive option for families or first-time buyers. Given the property's potential and generous living spaces, an early viewing is highly recommended to avoid missing out on this exceptional opportunity.



































































