**Standout Features:**
- Prime town centre location with dual access from Truro Road and West Hill
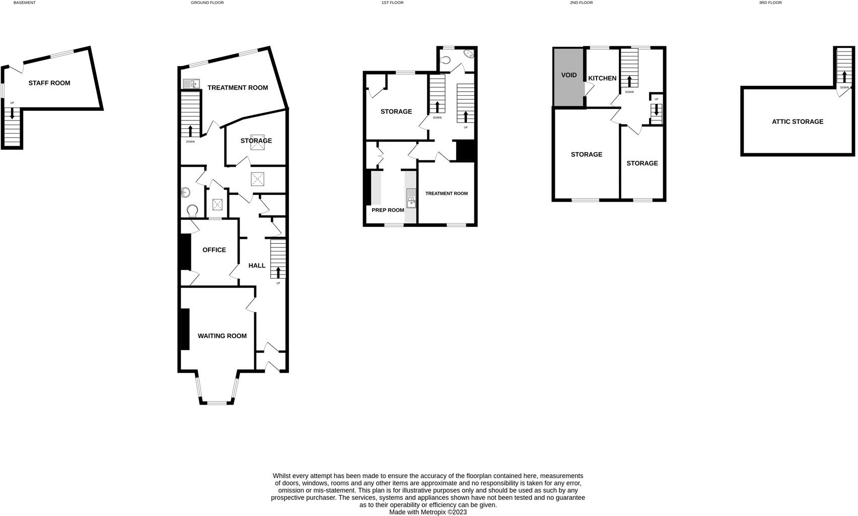
- Versatile four-floor accommodation ideal for various commercial or residential uses (subject to consents)
- Two substantial display window areas for excellent visibility
- Previously operated as a dental practice, retaining original architectural charm
- Close proximity to numerous amenities, enhancing foot traffic potential
**Summary:**
Discover an exceptional opportunity at 9 Truro Road, St. Austell, where versatility meets potential in this expansive four-floor property. Formerly a dental practice, this end-of-terrace building can easily be reimagined for diverse uses, from commercial ventures to residential developments (subject to appropriate consents). Enhanced by its prime location adjacent to the bustling town centre, the property ensures great visibility with two well-positioned display windows.
Residents and visitors alike will appreciate the variety of nearby amenities, creating a thriving environment for business or community-focused initiatives. Featuring good transport links, this property is perfectly situated for those seeking investment potential in a growing area. With excellent mobile signal strength and a well-maintained facade, the building is ready for its next chapter—don’t miss this chance to secure a unique and promising asset!
Commercial property for sale in Fore Street, St. Austell, PL25 — £150,000 • 1 bed • 1 bath • 1119 ft²
Light industrial facility for sale in Trekenning Road, St Columb, TR9 — £650,000 • 1 bed • 1 bath • 6590 ft²
Residential development for sale in High Cross Street, St Austell, PL25 — £500,000 • 1 bed • 1 bath
High street retail property for sale in 22 Grants Walk, St. Austell, Cornwall, PL25 — £175,000 • 1 bed • 1 bath • 1750 ft²
Commercial development for sale in 10 High Cross Street, St Austell, South West, PL25 — £500,000 • 1 bed • 1 bath • 23522 ft²
High street retail property for sale in Fore Street, St. Austell, Cornwall, PL25 — £595,000 • 1 bed • 1 bath • 9022 ft²






































































