Central compact home ideal for holiday use or a rental income stream.
- Situated within Conwy castle walls, minutes from harbour and high street
- Chain-free freehold with affordable council tax and no flood risk
- Gas combi boiler and UPVC double glazing in place
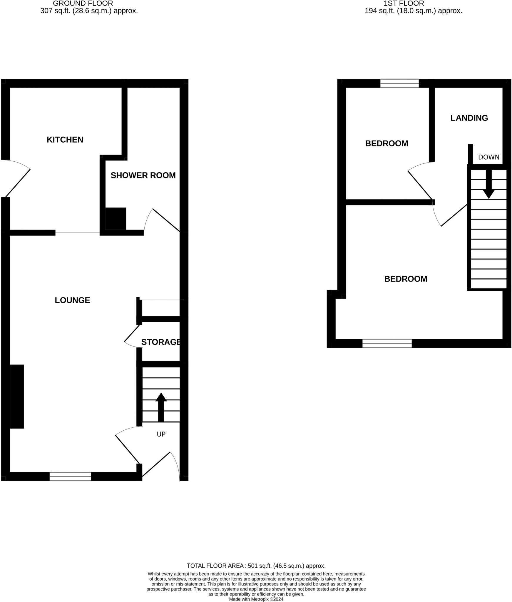
- Compact layout, total c. 501 sq ft; rooms are small to modest
- No garden or off-street parking; property fronts directly onto street
- Strong short-term rental/holiday potential due to location and amenities
- Area shows above-average crime and high local deprivation indicators
- Fast broadband and excellent mobile signal for remote working or guests
Set within Conwy's historic castle walls, this two-bedroom mid-terrace offers a compact, characterful base minutes from bars, shops and the harbour. The lounge/diner features an open fireplace and under-stairs storage; the kitchen and shower room include skylights that maximise natural light in a small footprint. Practical updates include a gas-fired combination boiler and UPVC double glazing.
The property is chain-free and freehold, suited to first-time buyers seeking a central town-home, or investors looking for short-term holiday lets — walking access to amenities and tourism appeal are strong positives. Broadband is fast and mobile signal excellent, supporting holiday guests or home-working.
Buyers should note the modest overall size (c. 501 sq ft) and small room proportions typical of traditional terraces. There is no garden or parking; the house fronts directly onto the street. The surrounding area shows higher-than-average crime and local deprivation indicators, which may affect long-term rental yields or family suitability.
Overall, this is an economical, well-located cottage with period charm and immediate rental or holiday potential, but best suited to buyers who prioritise central location over outdoor space and large rooms.
2 bedroom terraced house for sale in Watkin Street, Conwy , LL32 — £190,000 • 2 bed • 1 bath • 463 ft²
2 bedroom terraced house for sale in Watkin Street, Conwy, LL32 — £190,000 • 2 bed • 1 bath • 471 ft²
2 bedroom cottage for sale in Erskine Terrace, Conwy, LL32 — £225,000 • 2 bed • 1 bath • 549 ft²
2 bedroom terraced house for sale in Watkin Street, Conwy, LL32 — £180,000 • 2 bed • 1 bath • 441 ft²
2 bedroom cottage for sale in Sea View Terrace, Conwy, LL32 — £250,000 • 2 bed • 1 bath • 442 ft²
2 bedroom cottage for sale in Wind Street, Conwy, LL32 — £232,500 • 2 bed • 1 bath • 442 ft²






































