Bright open-plan living with large garden and single garage.
Three-bedroom detached new-build with contemporary finishes
A modern three-bedroom detached new-build on a generous plot, this home suits family life and flexible working. The open-plan kitchen and dining area flows into a bright lounge with French doors that open onto the garden, creating easy indoor–outdoor entertaining. A ground-floor bedroom or study and a downstairs WC add practical flexibility for home office use or guests.
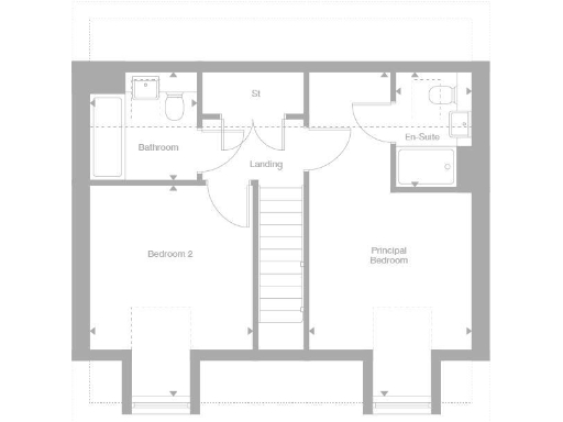
The principal bedroom benefits from an en-suite; a well-sized second bedroom and family bathroom complete the first floor. Integrated cupboards on the landing and in the kitchen provide useful storage. A single garage and driveway parking give secure vehicle space and extra storage.
This is a new-build property with a developer specification and an annual service charge of £250. Tenure details are not confirmed for every plot (some listed as freehold; one plot tenure TBC), and council tax banding is also yet to be confirmed. Reservation fee is shown as £1,000 on developer documentation.
Located in Blakedown’s suburban fringe, the setting is very low risk for flooding and very low crime. Broadband speeds are average and mobile signal is excellent. The home is aimed at families looking for contemporary, manageable living rather than high-end luxury; it offers straightforward, practical accommodation with room to adapt over time.
3 bedroom detached house for sale in Station Road,
Blakedown,
DY10 3LH, DY10 — £503,500 • 3 bed • 1 bath • 551 ft²
3 bedroom detached house for sale in Station Road,
Blakedown,
DY10 3LH, DY10 — £475,000 • 3 bed • 1 bath • 630 ft²
4 bedroom detached house for sale in Station Road,
Blakedown,
DY10 3LH, DY10 — £699,950 • 4 bed • 1 bath • 959 ft²
2 bedroom detached house for sale in Station Road,
Blakedown,
DY10 3LH, DY10 — £565,000 • 2 bed • 1 bath
3 bedroom detached house for sale in Station Road,
Blakedown,
DY10 3LH, DY10 — £452,000 • 3 bed • 1 bath • 618 ft²
4 bedroom detached house for sale in Station Road,
Blakedown,
DY10 3LH, DY10 — £699,950 • 4 bed • 1 bath • 959 ft²


































































