Compact, low-maintenance home with gated parking and rental potential.
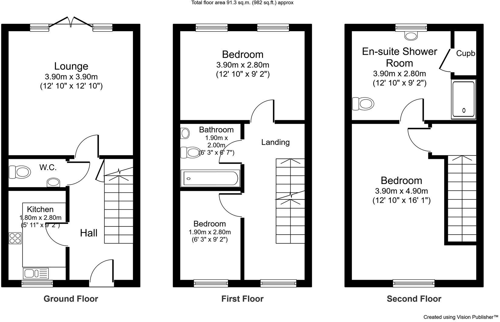
Three bedrooms over three floors with principal ensuite
A modern three-bedroom mid-terrace arranged over three floors, this red-brick townhouse offers practical living space for first-time buyers or investors. The ground floor has a fitted kitchen, downstairs WC and a lounge with French doors opening onto an enclosed rear garden; two bedrooms and a family bathroom sit on the first floor with the principal double and ensuite on the top floor.
The house is built post-2007, benefits from gas central heating, uPVC double glazing and neutral finishes throughout, so it is largely move-in ready. Allocated gated parking and an enclosed, low-maintenance garden are useful extras for urban living. The layout and room sizes are typical for a mid-terrace townhouse and will suit buyers who need straightforward, economical accommodation close to local amenities and transport links.
There are a few practical limitations to note. The kitchen is compact and some rooms have limited floorplate due to the multi-storey/roof-floor arrangement. Broadband speeds are reported as slow, and the rear garden and plot are small compared with larger family homes. The listing states the property is currently producing rental income of £11,700 per year, so prospective buyers should confirm the current tenancy and possession status before purchase.
Overall, this is a tidy, modestly sized modern townhouse offered chain-free on a freehold title. It will appeal to first-time buyers seeking an affordable, low-maintenance home or to investors looking for an established, city-edge buy-to-let with immediate rental history.
3 bedroom terraced house for sale in Alston Mews, St. Helens, WA10 — £169,950 • 3 bed • 2 bath • 982 ft²
3 bedroom end of terrace house for sale in Queen Street, St. Helens, WA10 — £155,000 • 3 bed • 2 bath • 819 ft²
3 bedroom end of terrace house for sale in Prestwick Close, St. Helens, Merseyside, WA9 — £190,000 • 3 bed • 2 bath • 1024 ft²
3 bedroom terraced house for sale in Winster Mews, St. Helens, Merseyside, WA10 — £180,000 • 3 bed • 2 bath • 1093 ft²
3 bedroom terraced house for sale in Crab Street, St. Helens, Merseyside, WA10 — £120,000 • 3 bed • 1 bath • 711 ft²
2 bedroom town house for sale in Lowther Crescent, St. Helens, WA10 — £170,000 • 2 bed • 3 bath • 937 ft²


































































