**Standout Features:**
- Newly renovated Victorian semi-detached house
- Four spacious bedrooms with potential for a fifth
- Modern kitchen/diner with high-quality finishes
- Separate utility room and stylish bathrooms
- Large rear garden with two patios ideal for entertaining
- Ample off-road parking with a single garage
- Located in the sought-after market town of North Walsham
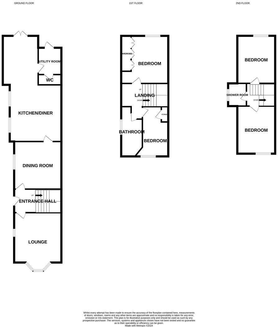
Discover the charm of this beautifully renovated Victorian semi-detached house, set in the thriving market town of North Walsham. Offering four generously sized bedrooms and an inviting open-plan layout, this home is designed for comfort and functionality. The expansive kitchen/diner, complete with premium quartz worktops and integrated appliances, seamlessly connects to the versatile dining area and relaxing lounge, making it perfect for family gatherings.
Upstairs, you will find spacious bedrooms, including two doubles, along with a modern bathroom suite equipped with both a luxurious freestanding bath and a separate shower. With planning permission previously granted for a dormer extension, there’s potential to customize this home further.
The exterior boasts a lovely rear garden ready for outdoor entertaining, while the large shingled driveway provides ample off-road parking leading to a single garage. Located just 14 miles from Norwich and close to local amenities, this property combines classic elegance with modern convenience. With its unique features and renovation potential, this exceptional home won't last long—be sure to view it today!
3 bedroom semi-detached house for sale in Norwich Road, North Walsham, Norfolk, NR28 — £400,000 • 3 bed • 1 bath • 1540 ft²
5 bedroom house for sale in North Walsham, Norfolk, NR28 — £550,000 • 5 bed • 2 bath • 2272 ft²
4 bedroom semi-detached house for sale in Bacton Road, North Walsham, Norfolk, NR28 — £400,000 • 4 bed • 2 bath • 1364 ft²
3 bedroom semi-detached house for sale in Station Road, North Walsham, NR28 — £280,000 • 3 bed • 1 bath • 1058 ft²
4 bedroom detached house for sale in Brick Kiln Road, North Walsham, Norfolk, NR28 — £360,000 • 4 bed • 3 bath • 1370 ft²
2 bedroom end of terrace house for sale in Mundesley Road, North Walsham, NR28 — £325,000 • 2 bed • 2 bath • 913 ft²


























































































































































