Walled garden, outbuildings and short walk to beach — scope to add value.
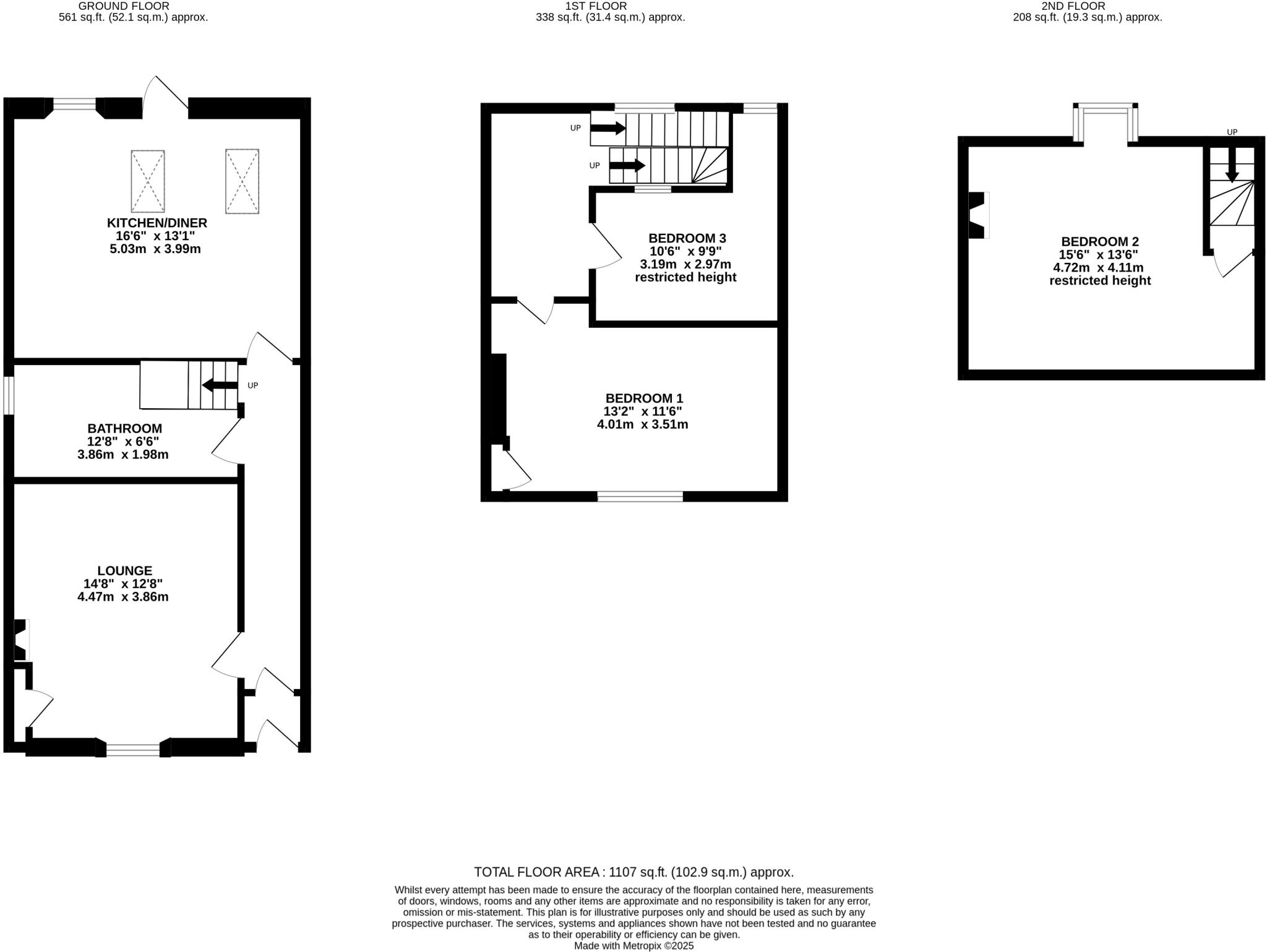
Two good double bedrooms plus small third room/office
This deceptively large mid-terraced Georgian home combines period character with practical modern upgrades. Two good double bedrooms and a bright kitchen-diner give comfortable family accommodation, while a third small room suits a child’s bedroom or home office. A new boiler was fitted recently and the property is chain-free and freehold.
The cottage-style walled garden and two stone outbuildings are valuable assets; they provide storage and scope to create a garden office or extend (subject to planning). The house sits a short walk from the beach, local shops and a new leisure centre, making it attractive for families, first-time buyers or a buy-to-let investor looking for rental demand in Berwick.
There are honest practical points to note: some updating is required, the upper bedroom has restricted headroom in the dormer area, and parking is on-street only. The stone walls are likely uninsulated and the EPC is D, so expect running-cost improvements if energy efficiency is a priority.
Overall this property offers strong renovation and value-add potential in a well-connected coastal town, with ready-to-use accommodation now and opportunities to increase space or rental income with planning approval.
2 bedroom terraced house for sale in Main Street, Berwick-Upon-Tweed, TD15 — £160,000 • 2 bed • 1 bath • 855 ft²
3 bedroom semi-detached house for sale in Shielfield Terrace, Tweedmouth, Berwick upon Tweed, TD15 — £310,000 • 3 bed • 2 bath • 1329 ft²
2 bedroom terraced house for sale in Tweed Street, Berwick-Upon-Tweed, TD15 — £180,000 • 2 bed • 1 bath • 587 ft²
3 bedroom terraced house for sale in Sandstell Road, Spittal, Berwick-Upon-Tweed, TD15 — £310,000 • 3 bed • 2 bath • 1647 ft²
3 bedroom terraced house for sale in 30 Church Road, Tweedmouth, Berwick-upon-Tweed, Northumberland, TD15 — £330,000 • 3 bed • 2 bath • 1292 ft²
2 bedroom end of terrace house for sale in Main Street, Spittal, TD15 — £194,950 • 2 bed • 1 bath • 1023 ft²


































































































