Light‑filled modern bungalow with summer house and private parking in Boscastle harbour village.
Detached modern bungalow built in 2020
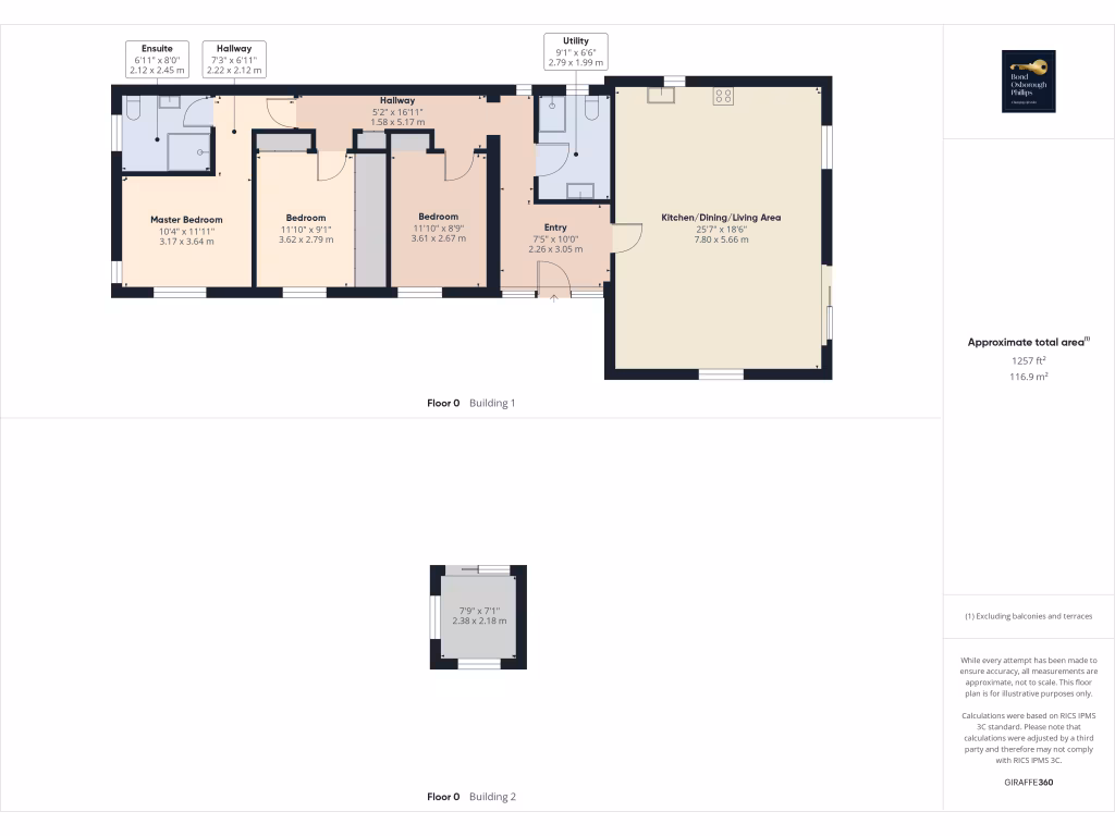
Tucked into Boscastle harbour village, The Boathouse is a detached, modern bungalow built in 2020 and designed for easy coastal living. The heart of the home is an airy, vaulted open-plan living, dining and kitchen area with large windows and skylights that deliver substantial natural light. The generous master bedroom includes a dual-aspect outlook and an en suite; two further bedrooms offer family or guest space and one is currently used as a studio. Practicalities are covered with a handy utility room and a storage cupboard by the hall.
Outside is a low‑maintenance, well‑laid-out space centred on a composite deck that wraps a fully fitted contemporary summer house — ideal for alfresco meals or a flexible home studio. Off‑road private parking for multiple cars sits just off Potters Lane. Solar panels are fitted to the roof, helping reduce electricity use and running costs.
Buyers should note some material facts: the property’s heating is electric underfloor heating and the main fuel is electricity (tariff unspecified), and the property has an EPC rating of D. Council tax band is to be confirmed. The wider area scores as deprived in demographic datasets, though local services, very low crime, excellent mobile signal and fast broadband support both family life and remote working.
This bungalow will suit buyers seeking a modern, lock‑up‑and‑leave coastal home or a family wanting light, single‑storey living close to village amenities and the harbour. The design and recent construction reduce immediate maintenance needs, while the layout offers straightforward potential for personalisation.
1 bedroom cottage for sale in The Harbour, Boscastle, PL35 — £350,000 • 1 bed • 1 bath • 1028 ft²
2 bedroom detached house for sale in Boscastle, Cornwall, PL35 — £475,000 • 2 bed • 2 bath • 1294 ft²
3 bedroom bungalow for sale in Potters Lane, Boscastle, Cornwall, PL35 — £400,000 • 3 bed • 1 bath • 1447 ft²
2 bedroom bungalow for sale in Trefleur Close, Boscastle, PL35 — £245,000 • 2 bed • 1 bath • 592 ft²
2 bedroom bungalow for sale in Trefleur Close, Boscastle, Cornwall, PL35 — £250,000 • 2 bed • 1 bath
1 bedroom semi-detached house for sale in Eglos View, Boscastle, PL35 — £190,000 • 1 bed • 1 bath • 592 ft²


































































































