Flexible family home with decked south garden and garage.
Recently renovated and extended to a high standard
Spacious master suite on upper level with en-suite
South-facing enclosed rear garden with wraparound decking
Two wooden pods: garden room/gym and workshop
Single garage plus gravel driveway parking
Floored, lined loft providing useful storage
EPC rating C; council tax assessed above average
Area classified as very deprived — consider local demographics
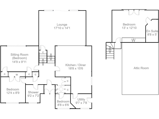
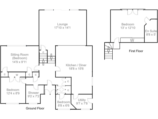
Recently renovated and extended to a high specification, this split-level detached bungalow offers flexible family living over a deceptively spacious footprint. The ground floor provides an open-plan kitchen/diner that flows via sliding doors onto a south-facing deck and enclosed garden, while a lowered lounge and utility/shower room complete the practical living areas. Two double bedrooms and a single room for a home office sit on the ground level.
The superb principal suite occupies the upper level, with en-suite shower and dressing space and large glazed elevations that bring light and outlook. Practical extras include a floored and lined loft used for storage, two timber pods (one as a gym/garden room, one as a workshop), a single garage and gravel driveway parking. The finish is contemporary throughout with modern sanitaryware and a farmhouse-style kitchen with integrated appliances.
This home sits in Lanark, offering ready access to schools, supermarkets, leisure facilities and country walks; the M74 and rail connections make it suitable for commuters to Glasgow and Edinburgh. EPC rating C and freehold tenure. Mobile signal is excellent; broadband speeds are average.
Important considerations: the property lies within an area classified as very deprived and has council tax above average. While recently fully renovated, buyers should note the listed EPC and verify services and appliances independently prior to offer.
3 bedroom detached house for sale in 14 Stonedyke Road Carluke ML8 4BQ, ML8 — £285,000 • 3 bed • 2 bath • 834 ft²
4 bedroom detached house for sale in Hyndford Road, Lanark, ML11 — £374,000 • 4 bed • 3 bath • 2070 ft²
3 bedroom detached bungalow for sale in Nursery Court, Kirkfieldbank, Lanark, ML11 — £299,995 • 3 bed • 2 bath • 1237 ft²
3 bedroom detached bungalow for sale in Braxfield Road, Lanark, ML11 — £275,000 • 3 bed • 1 bath • 921 ft²
5 bedroom bungalow for sale in Corehouse Drive, Lanark, ML11 — £425,000 • 5 bed • 2 bath • 1796 ft²
5 bedroom detached house for sale in Grange Court, Lanark, ML11 — £374,000 • 5 bed • 3 bath • 2448 ft²














































































































































































