Move-in ready with driveway parking and low-maintenance multi-level garden.
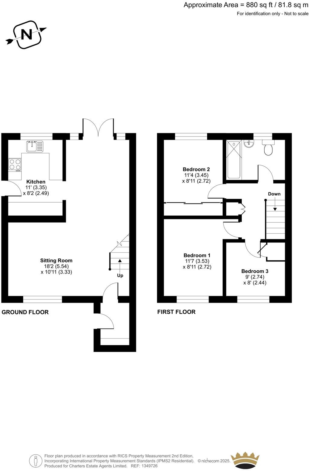
Three well-proportioned bedrooms with modern family bathroom
This well-presented three-bedroom end-of-terrace offers a contemporary, move-in ready layout in north Fareham. The ground floor flows through an open-plan lounge and dining area with French doors that extend living space into a low-maintenance, multi-level rear garden and decked entertaining area. A stylish, fitted kitchen complements the living space, and double glazing was installed after 2002.
Upstairs are three comfortably proportioned bedrooms served by a modern family bathroom — a practical arrangement for first-time buyers or a small family. The generous driveway provides off-street parking for multiple vehicles and gated side access improves usability. The house is freehold and built in the post-war period, with cavity-filled walls and mains gas central heating.
Buyers should note some practical limitations: the home occupies a small-to-average plot and internal space is modest at around 880 sq ft, with a single bathroom for three bedrooms. Crime in the local area is above average and nearby school ratings are mixed, so buyers wanting top-performing local schools should verify catchments. There is scope for modest landscaping improvements and potential extension subject to planning if more space is required.
Overall, the property offers contemporary presentation and convenient parking in a desirable North Fareham location, appealing to first-time buyers or buyers seeking a straightforward, low-maintenance family home with scope to personalise.
3 bedroom end of terrace house for sale in Heather Gardens, Fareham, Hampshire, PO15 — £290,000 • 3 bed • 1 bath • 840 ft²
3 bedroom end of terrace house for sale in Johns Road, Fareham, Hampshire, PO16 — £340,000 • 3 bed • 1 bath • 982 ft²
3 bedroom end of terrace house for sale in Triumph Close, Fareham, PO15 — £279,995 • 3 bed • 1 bath • 1112 ft²
3 bedroom terraced house for sale in Crescent Road, Fareham, Hampshire, PO16 — £274,000 • 3 bed • 1 bath • 929 ft²
3 bedroom terraced house for sale in Oak Road, Fareham, PO15 — £315,000 • 3 bed • 1 bath • 1062 ft²
3 bedroom terraced house for sale in Carran Walk, Fareham, PO14 — £280,000 • 3 bed • 1 bath • 968 ft²






























































