Low-maintenance family home with garage, driveway and a lovely rear garden.
Three bedrooms with en-suite to principal bedroom
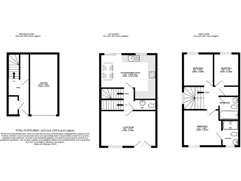
This modern three-storey townhouse is presented in excellent order and suits a busy family or an investor seeking low-maintenance accommodation. The layout places living on the first floor where French doors and a Juliette balcony brighten the principal reception, while an open-plan kitchen/dining room opens to the rear garden for relaxed family life.
Practicality is a strong point: an integral garage with internal access, a paved drive for two cars and a neat, landscaped garden with decking and tiered beds make outside maintenance straightforward. The property has been newly renovated and benefits from double glazing and mains gas central heating, providing modern comfort throughout.
The house is close to town amenities and several well-regarded primary and secondary schools, making the location especially convenient for families. It also represents a compact, ready-to-rent option for landlords seeking steady returns in an area with low crime and fast broadband.
Buyers should note room sizes are typically small-to-average for a townhouse of this type and the front garden/forecourt is modest. EPC band C reflects reasonable efficiency, but purchasers seeking top energy performance may wish to investigate further upgrades.
3 bedroom detached house for sale in Marsh Drive, Workington, CA14 — £205,000 • 3 bed • 3 bath • 969 ft²
3 bedroom semi-detached house for sale in Potters Meadow, Workington, Cumbria, CA14 — £200,000 • 3 bed • 2 bath • 829 ft²
3 bedroom terraced house for sale in Napier Street, Workington, CA14 — £110,000 • 3 bed • 1 bath • 934 ft²
3 bedroom end of terrace house for sale in Grayling Way, Workington, CA14 — £147,000 • 3 bed • 2 bath • 712 ft²
4 bedroom terraced house for sale in Infirmary Road, Workington, CA14 2UG, CA14 — £190,000 • 4 bed • 2 bath • 1044 ft²
3 bedroom terraced house for sale in Greystone Terrace, Cleator Moor, Cumbria, CA25 — £180,000 • 3 bed • 2 bath • 1768 ft²


























































