Spacious family living, large garden and double garage near Dewlands Common.
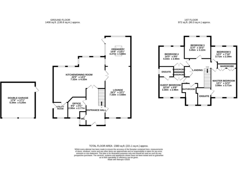
Five double bedrooms with two en suites
Three reception rooms plus dedicated home office/study
Recently refitted kitchen/diner with island and separate utility
Light orangery overlooking enclosed rear garden and new patio
Large corner plot with substantial driveway and double garage
Built c.1996–2002; double glazing and gas central heating
Energy Performance Rating D; Council Tax Band G (quite expensive)
Gas safety/service certificates pending
An executive five-double-bedroom detached house on a large corner plot, offered freehold and priced to sell. The house delivers generous family accommodation over two storeys with three reception rooms, a recently refitted kitchen/diner with island, a separate utility, and a light-filled orangery that opens onto a newly laid patio and enclosed rear garden. The double garage and substantial driveway provide extensive off-street parking.
Upstairs there are five double bedrooms, including two en-suite bedrooms and a shared five-piece family bathroom with bath and separate shower. The property was built c.1996–2002, benefits from double glazing and gas central heating to radiators, and sits in a very low-crime, affluent suburb close to Dewlands Common and local schools rated Good–Outstanding.
Practical points to note: the Energy Performance Certificate is D and the property is in Council Tax Band G (quite expensive). Gas safety installation and service certificates are to follow. Overall the home is well maintained and ready for immediate family occupation, with potential to update cosmetic finishes in time to personalise.
This house will suit growing families seeking space, good local schools, strong connectivity and privacy, or buyers who want a large, well-proportioned home with good entertaining areas and straightforward parking and storage.
5 bedroom detached house for sale in Little Dewlands, Verwood, BH31 — £725,000 • 5 bed • 3 bath • 2291 ft²
5 bedroom detached house for sale in Bridleways, Verwood, BH31 — £700,000 • 5 bed • 2 bath • 2880 ft²
4 bedroom detached house for sale in Ringwood Road, Verwood, BH31 — £650,000 • 4 bed • 4 bath • 1884 ft²
5 bedroom detached house for sale in Verwood, BH31 — £975,000 • 5 bed • 3 bath • 1954 ft²
4 bedroom detached house for sale in Verwood, BH31 — £650,000 • 4 bed • 1 bath • 1465 ft²
4 bedroom detached house for sale in Dymewood Road, Three Legged Cross, Wimborne, BH21 — £670,000 • 4 bed • 3 bath • 2460 ft²


































































































