Character three-bedroom cottage with large garden and loch vistas.
Heart of Plockton village with loch views
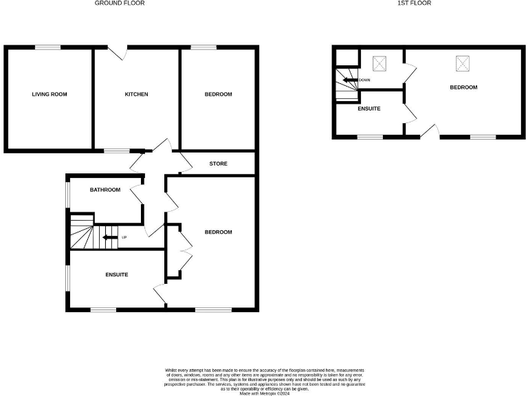
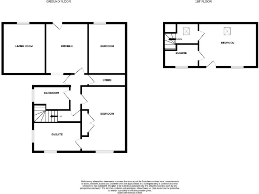
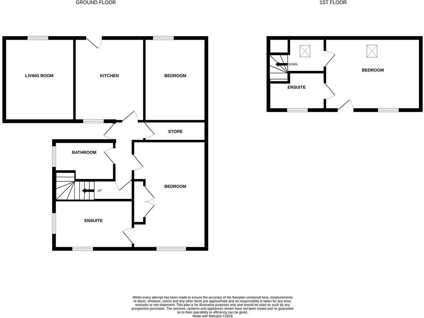
Set in the heart of Plockton, this three-bedroom end-of-terrace cottage delivers classic stone character and striking views over Loch Carron. The accommodation is arranged over two floors and includes a front lounge with feature fireplace, a modern kitchen/diner with integrated appliances, and three double bedrooms — two with en-suite shower rooms. Double glazing and electric heating are fitted throughout, and the property is offered freehold.
Externally there is a large, tiered rear garden with mature planting and sunny seating areas that capture the loch views. The house totals about 1,006 sq ft and comes with included floorcoverings, curtains and blinds. Practical benefits include mains water, electricity and drainage, excellent mobile signal and an average broadband speed typical of rural locations.
Notable positives include the village centre location, immediate access to local amenities and the property being offered below the Home Report valuation (asking price £300,000; Home Report valuation £385,000). Buyers should note the house is heated by electric radiators, ceiling heights are generally low to standard, and the surrounding area is classified as “very deprived” with an ageing rural demographic — factors that may influence running costs, resale profile and local services.
This property will suit purchasers seeking a character cottage in a scenic coastal village — a family wanting a main home with outdoor space, or buyers aiming to remodel and capture long-term value. A viewing is recommended to appreciate the scale, village setting and the loch outlook.
3 bedroom semi-detached house for sale in Harbour Street, Plockton IV52 8TG, IV52 — £325,000 • 3 bed • 2 bath • 1002 ft²
3 bedroom house for sale in Harbour Street, Plockton, IV52 8TN, IV52 — £445,000 • 3 bed • 2 bath • 1260 ft²
3 bedroom semi-detached house for sale in Harbour Street, Plockton - IV52 8TN, IV52 — £450,000 • 3 bed • 3 bath • 1227 ft²
4 bedroom detached house for sale in 2 Cooper Street, Plockton, Highland, IV52 8TJ, IV52 — £295,000 • 4 bed • 1 bath
3 bedroom semi-detached house for sale in Lochcarron, Strathcarron, IV54 — £250,000 • 3 bed • 2 bath • 905 ft²
2 bedroom terraced house for sale in 14 Shore Street, Applecross, Strathcarron, Highland, IV54 — £235,000 • 2 bed • 1 bath • 904 ft²


























































































