Turnkey holiday income or a peaceful riverside retreat in the heart of Horning.
River Bure frontage with decked terrace and attractive river views
Currently operating as a successful holiday let — immediate income potential
No onward chain; freehold tenure
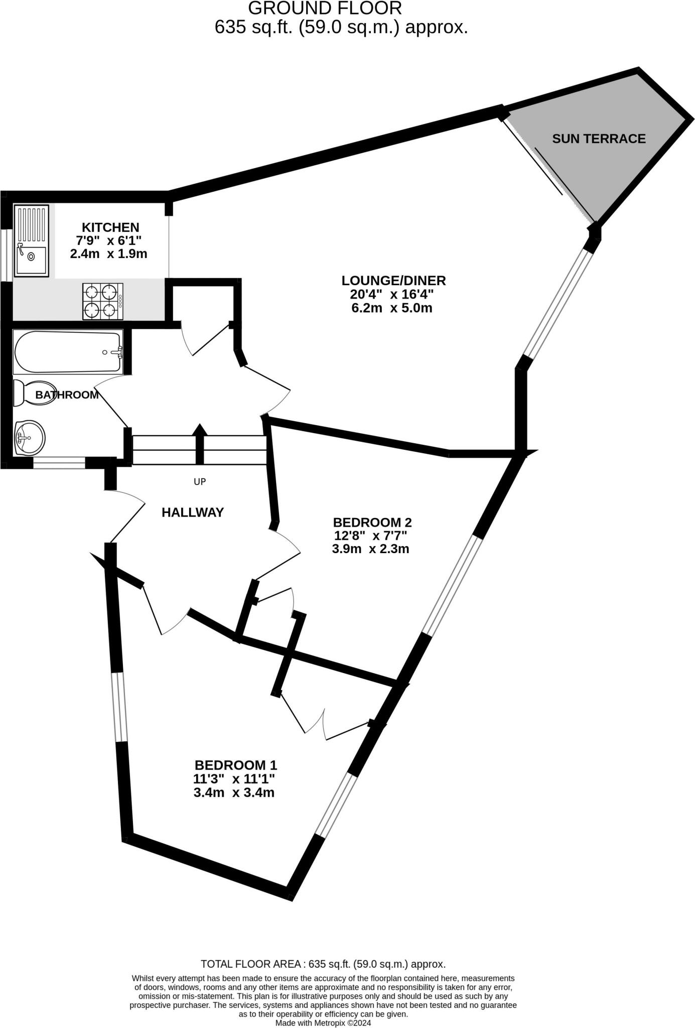
Two bedrooms, open-plan lounge/diner, one bathroom; 635 sq ft total
Large plot with shared driveway and off-street parking
High flood risk — insurance and resilience measures required
Very slow broadband and average mobile signal — may affect remote working
Mid-century flat roof and wooden exterior will require ongoing maintenance
A two-bedroom bungalow set directly on the banks of the River Bure, offered with no onward chain. The property enjoys direct river views and a decked terrace ideal for holiday lettings or relaxed riverside living. Its compact 635 sq ft layout includes an open-plan lounge/diner, fitted kitchen, family bathroom and two bedrooms with built-in storage.
Currently run successfully as a holiday let, this freehold home sits on a large plot with shared hardstanding leading to off-street parking. The village location in Horning places shops, a primary school and popular riverside pubs within easy walking distance, while Wroxham and Hoveton’s wider amenities lie a short drive away.
There are some practical considerations: the home is modest in size and has a mid-century flat roof and wooden exterior that will need ongoing maintenance. Broadband speeds are very slow and mobile signal only average, which may affect longer-term holiday let bookings or remote working. Importantly, the property lies in a high flood-risk area — buyers should factor specialist insurance and flood resilience measures into running costs.
For an investor or someone seeking a low-footprint river retreat, this bungalow offers immediate letting potential and scope for targeted improvements to increase appeal and resilience. Its positioning on the Broads and no onward chain make it a straightforward purchase for those prepared to manage the maintenance and flood-related requirements.
 3 bedroom detached bungalow for sale in Horning, NR12 — £650,000 • 3 bed • 2 bath • 895 ft²
 3 bedroom detached bungalow for sale in Horning, NR12 — £650,000 • 3 bed • 2 bath • 895 ft² 1 bedroom detached bungalow for sale in Bureside Estate, Crabbetts Marsh, Horning, NR12 — £400,000 • 1 bed • 1 bath • 978 ft²
 1 bedroom detached bungalow for sale in Bureside Estate, Crabbetts Marsh, Horning, NR12 — £400,000 • 1 bed • 1 bath • 978 ft² 2 bedroom bungalow for sale in Ferry View Estate, Horning, Norwich, Norfolk, NR12 — £162,000 • 2 bed • 1 bath • 460 ft²
 2 bedroom bungalow for sale in Ferry View Estate, Horning, Norwich, Norfolk, NR12 — £162,000 • 2 bed • 1 bath • 460 ft² 3 bedroom detached house for sale in Horning, NR12 — £650,000 • 3 bed • 1 bath • 543 ft²
 3 bedroom detached house for sale in Horning, NR12 — £650,000 • 3 bed • 1 bath • 543 ft² 2 bedroom detached bungalow for sale in Potter Heigham, NR29 — £195,000 • 2 bed • 1 bath • 397 ft²
 2 bedroom detached bungalow for sale in Potter Heigham, NR29 — £195,000 • 2 bed • 1 bath • 397 ft² 3 bedroom bungalow for sale in Lower Street, Horning, Norwich, Norfolk, NR12 — £600,000 • 3 bed • 1 bath • 669 ft²
 3 bedroom bungalow for sale in Lower Street, Horning, Norwich, Norfolk, NR12 — £600,000 • 3 bed • 1 bath • 669 ft²






































