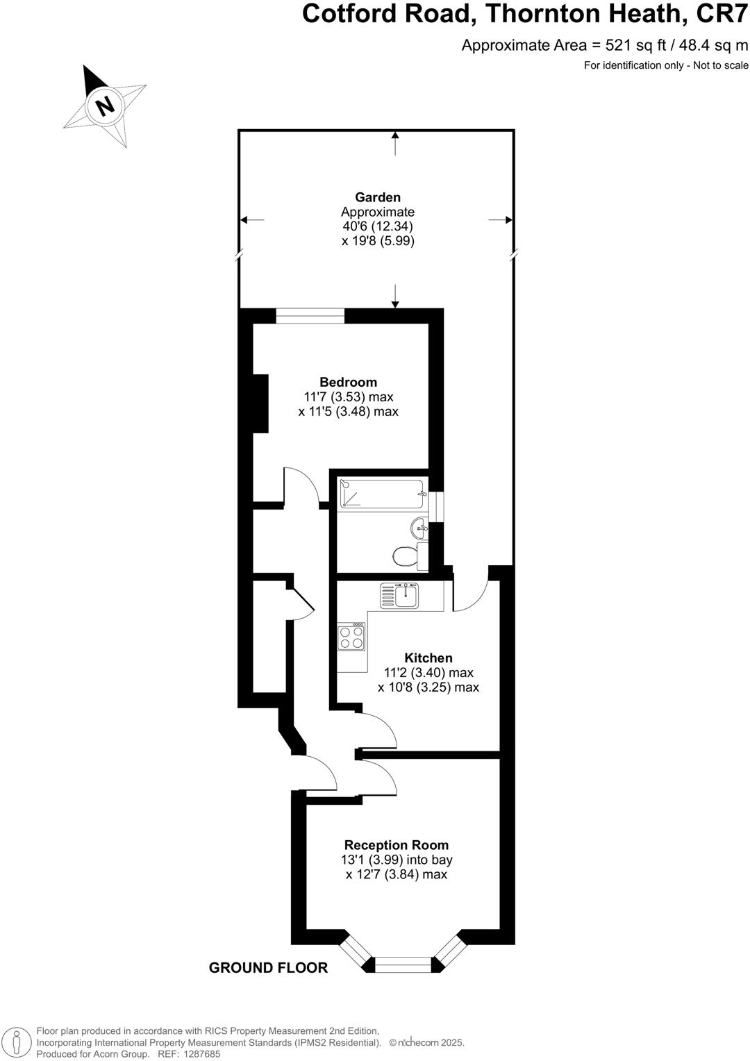
Large one-bed ground-floor flat with private garden and long lease, a short walk to Thornton Heath station..
- Ground-floor one-bedroom with private garden
- New 125-year lease granted on completion
- Chain free sale for straightforward purchase
- Thornton Heath station c.0.1 miles; excellent transport links
- EPC rating D; double glazed but basic thermal performance
- Heating: electric room heaters only (no central heating)
- Area records high crime and very high deprivation
- Service charge approximately £1,404 per year
This ground-floor one-bedroom apartment sits in a period terrace just moments from Thornton Heath High Street and the station. High ceilings, a bay-windowed living room and direct access to a private garden give the flat a sense of space unusual for its size. A new 125-year lease will be granted on completion and the property is offered chain free.
The flat is well placed for commuters — Thornton Heath station is about 0.1 miles away — and local schooling and amenities are all within easy reach. The property has double glazing and an Energy Performance Rating of D, making it a practical, affordable option for a first-time buyer or a rental investor seeking immediate let potential.
Buyers should note material drawbacks: heating is by electric room heaters only, walls are likely solid brick with no insulation, and the area records high crime and very high deprivation. There is a service charge averaging £1,404 per year, and on-street parking only. These points affect running costs and may require future investment in heating or insulation.
Overall, the apartment offers good long-term potential thanks to the long lease, private garden and central location. It suits a buyer happy to accept modest ongoing costs and to make incremental improvements, or an investor targeting steady rental demand in a well-connected urban area.
1 bedroom apartment for sale in Belle Vue Park, Thornton Heath, CR7 — £235,000 • 1 bed • 1 bath • 485 ft²
1 bedroom flat for sale in Belle Vue Park, Thornton Heath, CR7 — £235,000 • 1 bed • 1 bath • 426 ft²
1 bedroom apartment for sale in Parchmore Road, Thornton Heath, Surrey, CR7 — £250,000 • 1 bed • 1 bath • 659 ft²
1 bedroom flat for sale in Northwood Road, Thornton Heath, Croydon, CR7 8H, CR7 — £255,000 • 1 bed • 1 bath • 482 ft²
1 bedroom flat for sale in Bensham Grove, Thornton Heath, Surrey, CR7 — £275,000 • 1 bed • 1 bath • 584 ft²
1 bedroom flat for sale in Parchmore Road, Thornton Heath, CR7 — £180,000 • 1 bed • 1 bath • 667 ft²


































































