**Standout Features:**
- Modern mews-style property built in the early 2000s
- Spacious accommodation with two generous double bedrooms and two bathrooms
- Enclosed garden, detached garage, and driveway parking
- Convenient location near Whaley Bridge’s amenities and public transport
- Newly renovated with double glazing and gas central heating
**Summary:**
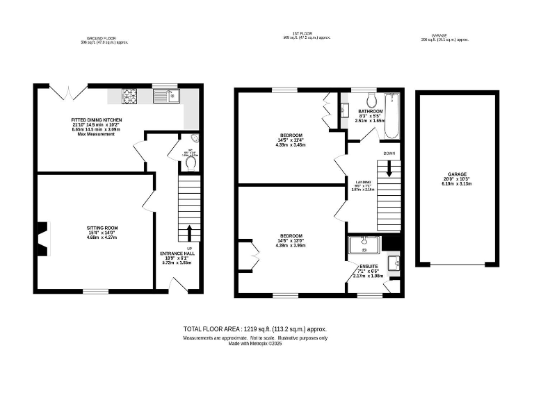
This beautifully presented and spacious mews-style property, tucked away in a quiet area of Whaley Bridge, offers a contemporary living experience. With a total of 1219 square feet, this light-filled home features a welcoming hallway, a large sitting room with a picture window and fireplace, as well as a fitted dining kitchen with double doors opening to an easy-maintenance, enclosed garden.
Upstairs, you will find two well-sized double bedrooms, including one with an en-suite shower room, complemented by a further family bathroom. The property also includes a detached garage and parking conveniently located directly across the road. Situated just a short stroll from the local primary schools and an array of shopping facilities, cafes, and the scenic Peak Forest Canal, this property is ideal for families and first-time buyers alike.
While the broadband speeds are noted as slow, the community is regarded as affluent and safe, ensuring a peaceful environment. With its modern design and potential for personalization, seize the opportunity to make this charming property your new home before it's gone!
2 bedroom mews property for sale in Wharf Road, Whaley Bridge, High Peak, Derbyshire, SK23 — £285,000 • 2 bed • 2 bath • 894 ft²
2 bedroom semi-detached house for sale in Woodbrook, Whaley Bridge, High Peak, SK23 — £250,000 • 2 bed • 1 bath • 592 ft²
4 bedroom end of terrace house for sale in Cotton Close, Whaley Bridge, High Peak, SK23 — £315,000 • 4 bed • 2 bath • 1158 ft²
2 bedroom semi-detached house for sale in Macclesfield Road, Whaley Bridge, High Peak, SK23 — £240,000 • 2 bed • 1 bath • 679 ft²
2 bedroom terraced house for sale in Old Road, Whaley Bridge, SK23 — £269,500 • 2 bed • 1 bath • 657 ft²
4 bedroom detached house for sale in Reservoir Road, Whaley Bridge, High Peak, SK23 — £515,000 • 4 bed • 2 bath • 1477 ft²


































































































