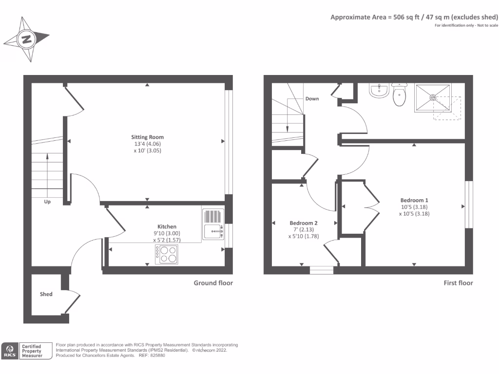
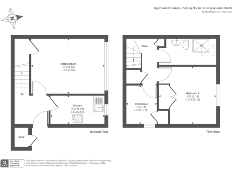
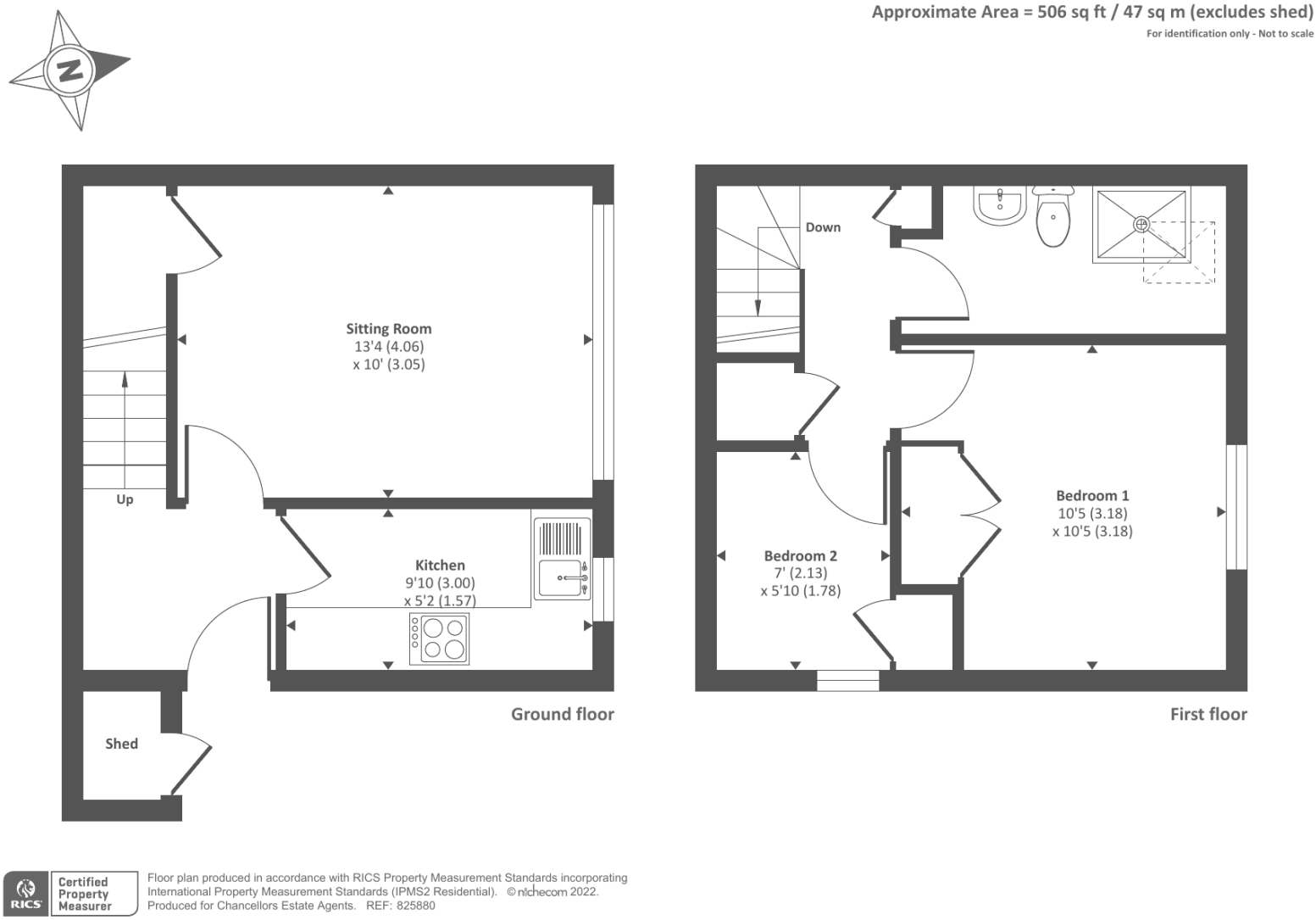
**Standout Features:**
- Two double bedrooms in a semi-detached layout
- Located in a quiet cul-de-sac within the Heatherside development
- Allocated off-street parking
- Freehold tenure, chain-free sale
- Close proximity to outstanding schools
- Triple glazing for energy efficiency
- Manageable garden to the front
- Fast broadband and excellent mobile signal
**Potential Concerns:**
- Smaller overall size at 506 square feet
- Limited indoor space may require creative layout solutions.
Discover this charming two-bedroom semi-detached home nestled in a peaceful cul-de-sac, perfect for first-time buyers or small families. With a contemporary interior featuring ample natural light, the property boasts three rooms, including a spacious living room dressed in minimalist decor. Enjoy the benefits of a manageable garden, allocated off-street parking, and reliable low council tax—all within a thriving community.
Parents will appreciate being in the catchment area for highly-rated schools, including Outstanding rated Ravenscote Junior School and Tomlinscote Secondary School. Located just 0.4 miles from local shops and amenities, this home offers the ideal blend of comfort and convenience.
While the compact layout may present some limitations, the property's freehold status and renovation potential give you the opportunity to create your dream space. Don’t miss out on this exceptional chance to enter a desirable neighborhood—properties like this are in high demand and won't last long!
3 bedroom semi-detached house for sale in Glassonby Walk, Camberley, Surrey, GU15 — £375,000 • 3 bed • 1 bath • 1518 ft²
3 bedroom semi-detached house for sale in White Wood Vale, Frimley, Camberley, Surrey, GU16 — £495,000 • 3 bed • 2 bath • 559 ft²
2 bedroom semi-detached house for sale in Marlborough View, Farnborough, GU14 — £385,000 • 2 bed • 1 bath • 770 ft²
2 bedroom terraced house for sale in Horsham Road, Owlsmoor, Sandhurst, GU47 — £300,000 • 2 bed • 1 bath • 601 ft²
2 bedroom terraced house for sale in Attebrouche Court, Bracknell, Berkshire, RG12 — £350,000 • 2 bed • 1 bath • 724 ft²
3 bedroom semi-detached house for sale in Inglewood Avenue, Camberley, Surrey, GU15 — £435,000 • 3 bed • 1 bath • 1288 ft²










































