Straightforward renovation project close to schools and commuter routes.
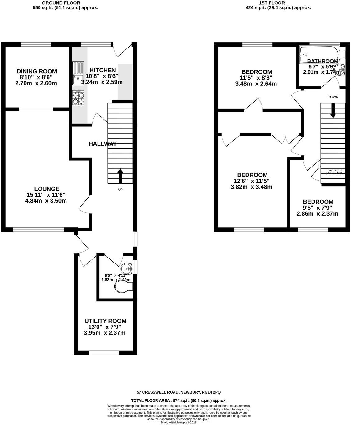
Three bedrooms with two bathrooms and separate utility room
A practical three-bedroom mid-terrace offering clear scope to add value in a well-connected Newbury street. The layout includes two bathrooms, a separate utility room and a private rear garden, so the home works for everyday family life while you plan updates.
The property requires renovation throughout, giving buyers freedom to modernise the kitchen, bathrooms and finishes. Cavity walls were built as standard and are assumed to have no insulation; double glazing was installed after 2002. Heating is mains-gas boiler and radiators.
Useful extras include off-street parking, freehold tenure and an affordable Council Tax band C. Local schools rated Good and convenient A34/M4 links make this a sensible choice for first-time buyers or young families prepared to invest time and budget into improvements.
Be clear: the house shows wear consistent with post-war construction and needs updating; cavity walls may require insulation work and the area records above-average crime levels. For those seeking a project with realistic renovation potential in a popular town location, this presents a solid opportunity.
3 bedroom terraced house for sale in Epsom Crescent, Newbury, RG14 — £350,000 • 3 bed • 1 bath • 817 ft²
3 bedroom semi-detached house for sale in Abbey Close, Newbury, Berkshire, RG14 — £460,000 • 3 bed • 2 bath • 1198 ft²
3 bedroom semi-detached house for sale in Chestnut Crescent, Newbury, RG14 — £320,000 • 3 bed • 1 bath • 1003 ft²
3 bedroom end of terrace house for sale in St. George's Avenue, Newbury, Berkshire, RG14 — £375,000 • 3 bed • 2 bath • 1054 ft²
3 bedroom terraced house for sale in Reynards Close, Tadley, Hampshire, RG26 — £300,000 • 3 bed • 1 bath • 983 ft²
3 bedroom end of terrace house for sale in London Road, Newbury, Berkshire, RG14 — £425,000 • 3 bed • 1 bath • 1617 ft²


































