TQ5 9SD - 4 bed windmill hill detached in Windmill Hill, TQ5 9SD

View on Property Piper

4 bedroom detached house for sale in Windmill Hill, Brixham, Devon, TQ5

Summary - 35 WINDMILL HILL BRIXHAM TQ5 9SD

4 bed 1 bath Detached

Retirement-friendly coastal home with lifetime-lease buying option.
Detached four-bedroom house with detached garage and decent garden
Set on Windmill Hill in Brixham, this detached four-bedroom house offers a detached garage, decent garden and coastal outlooks ideal for a relaxed retirement by the sea. The property’s layout across two storeys provides flexible room use — spare bedrooms for guests or hobbies and a living room with a fireplace that suits comfortable, low-maintenance living.

This home is being offered with the Home for Life Lifetime Lease option for purchasers aged 60 and over. The guide Lifetime Lease price is £289,750 (typical saving around 33% versus the full market price of £432,500), with the exact figure dependent on buyer age and circumstances. The plan also allows buying a share of the property (up to 50%) to protect future value.

Practical strengths include mains gas central heating, double glazing, very low local crime and excellent mobile and broadband connectivity. Notable drawbacks: the house has only one bathroom, overall size is small (approx. 971 sq ft), tenure is listed as unknown and the area scores high on deprivation indices; the mid-20th-century build and unspecified glazing installation date suggest updating may be needed in parts.

This property suits someone over 60 seeking detached living near the coast with the financial flexibility of a Lifetime Lease. Verify all legal, tenure and service details with your solicitor before proceeding.

Property Details

Image Descriptions

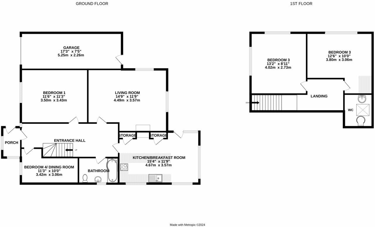
Floorplan Description

Rooms

Textual Property Features

Target Audience

AI Tags

Detected Visual Features

EPC Details

Nearby Schools

Nearest Bars And Restaurants

,,,,}

Nearest General Shops

,,}

Nearest Grocery shops

,,}

Nearest Supermarkets

,,}

Nearest Religious buildings

,,}

Nearest Medical buildings

,,,}

Nearest Leisure Facilities

,,,,}

Nearest Tourist attractions

,,}

Nearest Train stations

,,,,}

Nearest Bus stations and stops

,,,,}

Nearest Hotels

,,}

Tags

Local Market Stats

AirBnB Data

Similar Properties

Meta

High Res Images

Compatible Images

Low res Images

Thumbnails

Raw Images

High Res Floorplan Images

Compatible Floorplan Images

Low res Floorplan Images

FloorplanImages Thumbnail

Raw Floorplan Images