First-floor home with bay-window lounge and generous kitchen, close to parks and transport..
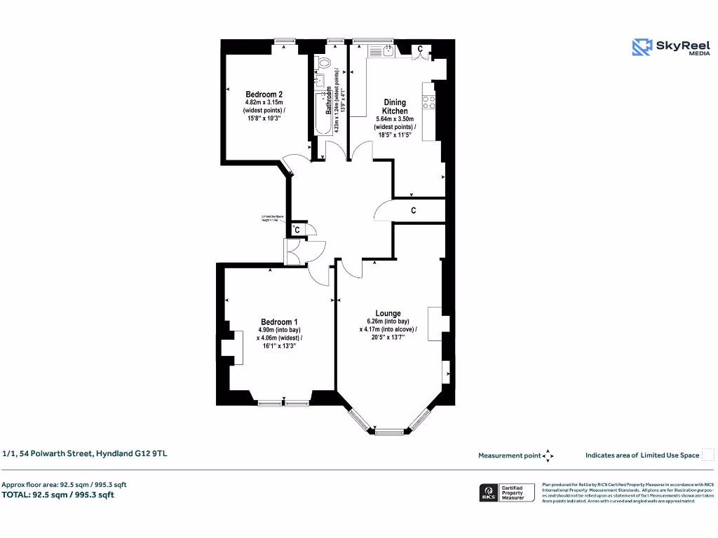
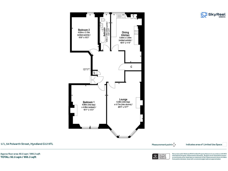
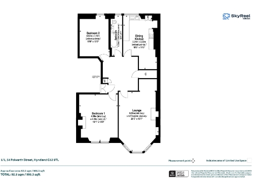
Large 995 sqft two-bedroom first-floor apartment with high ceilings
Set on the preferred first floor of a red sandstone tenement, this two-bedroom apartment blends generous proportions with original period detail. High ceilings, sash-and-case windows and a three-section bay create bright, airy rooms including a large lounge and a spacious dining kitchen. The property benefits from gas central heating, a well-kept shared rear garden and freehold tenure.
Practical points are clear: the property sits within the West End’s amenity-rich area, close to cafes, shops, parks and strong public transport links, making it well suited to city professionals, first-time buyers or buy-to-let purchasers. On-street residents’ parking is available by permit and the flat provides easy access to Hyndland and Partick stations and major road links.
Buyers should note the home’s EPC rating is D and council tax band E (above average), and the wider area includes pockets of deprivation despite the desirable West End address. The building retains period features but the flat will benefit from cosmetic updating to suit a modern buyer’s tastes. A closing date is set for Tuesday 11th November at 11am.
Overall this is a spacious, characterful West End property with clear potential for personalisation or rental income, offered with freehold security and convenient local amenities close by.
2 bedroom apartment for sale in Naseby Avenue, Broomhill, Glasgow, G11 — £275,000 • 2 bed • 1 bath • 939 ft²
2 bedroom flat for sale in 3/1 44 Airlie Street, Hyndland, G12 9TR, G12 — £235,000 • 2 bed • 1 bath • 743 ft²
2 bedroom apartment for sale in 0/1, 51 Airlie Street, Hyndland, G12 9SP, G12 — £215,000 • 2 bed • 1 bath • 710 ft²
2 bedroom flat for sale in 3/1 28 Polwarth Street, Hyndland, G12 9TX, G12 — £359,000 • 2 bed • 1 bath • 1206 ft²
2 bedroom apartment for sale in Polwarth Street, Hyndland, Glasgow, G12 — £285,000 • 2 bed • 1 bath • 925 ft²
1 bedroom flat for sale in 2/2, 38 Airlie Street, Hyndland, G12 9TP, G12 — £225,000 • 1 bed • 1 bath • 758 ft²


































































































