Private five-bed farmhouse with extensive grounds close to Tiverton.
2.75 acres including paddock and stream boundary
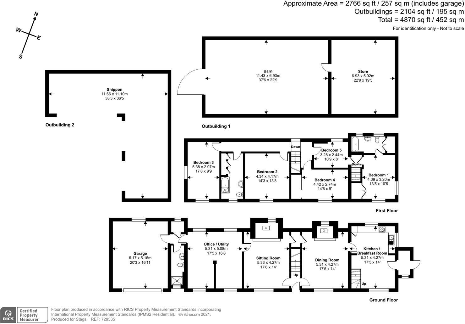
Coombe Hayes is a substantial five-bedroom detached farmhouse quietly set in about 2.75 acres, just 1.5 miles from Tiverton. The house offers three reception rooms, a large triple-aspect kitchen/breakfast room, and a principal bedroom with ensuite — plenty of space for family living or multi-generational occupation. There is no onward chain and the freehold includes a private lane, outbuildings and a paddock bordered by a stream.
The grounds and outbuildings are a major strength: attractive lawns, mature trees, a turning and parking area, former shippon/tallet and additional livestock buildings that present flexible scope for garaging, workshops or conversion subject to consents. The paddock and stream provide practical grazing or amenity space for small-scale keeping and countryside enjoyment.
Buyers should note this is an older property (pre-1900 cob, stone and brick additions) with an EPC rating of E and oil-fired central heating. Some walls are likely uninsulated and the property uses a shared private water supply and Klargester septic system. Broadband speeds are very slow locally; mobile signal is average. Council Tax Band F makes ongoing costs comparatively high.
Overall this is a character-filled rural home offering immediate family accommodation and clear renovation or income potential from the outbuildings. It will suit purchasers wanting privacy and land close to Tiverton, and those prepared to carry out energy and services improvements to modernise long-term running costs.
5 bedroom detached house for sale in Templeton, Tiverton, EX16 — £800,000 • 5 bed • 2 bath • 3127 ft²
Equestrian facility for sale in Cadeleigh, Tiverton, Devon, EX16 — £3,750,000 • 12 bed • 10 bath • 8928 ft²
Equestrian facility for sale in Cadeleigh, Tiverton, Devon, EX16 — £3,750,000 • 5 bed • 4 bath • 6233 ft²
5 bedroom detached house for sale in Rackenford Road, Tiverton, EX16 — £950,000 • 5 bed • 4 bath • 3436 ft²
5 bedroom detached house for sale in 6.72 Acres - Butterleigh, Cullompton, Devon, EX15 — £975,000 • 5 bed • 5 bath • 3620 ft²
8 bedroom detached house for sale in Templeton, Tiverton, Devon, EX16 — £1,100,000 • 8 bed • 3 bath • 5242 ft²


















































































































