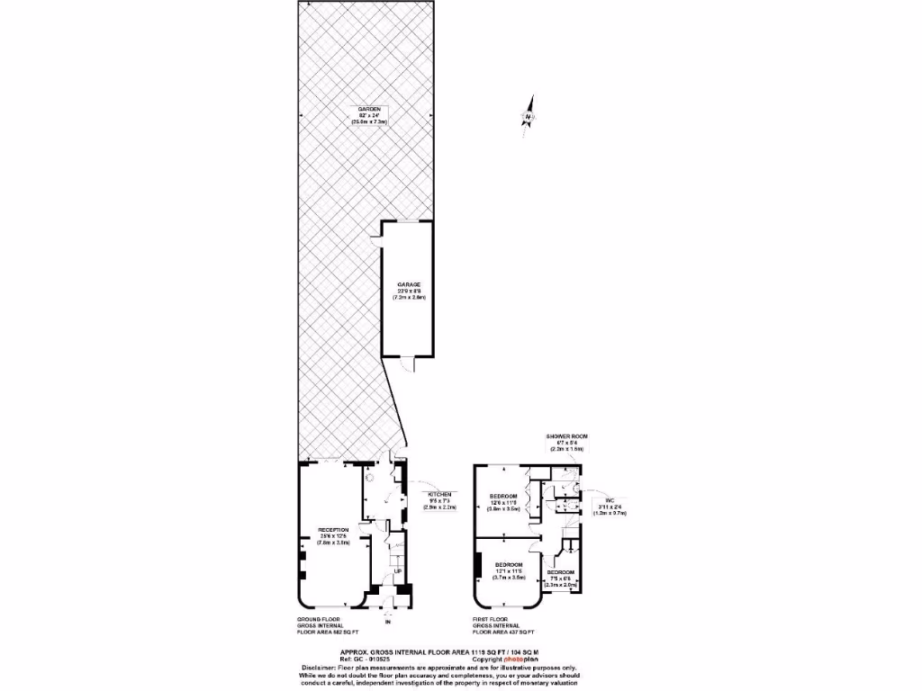
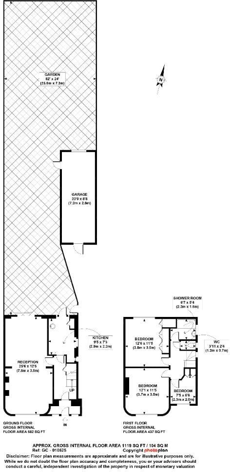
Three-bedroom freehold with garden, garage and strong transport links for growing families..
- Detached freehold with private off-street parking and garage outbuilding
- Bright rooms with large double-glazed windows and data/TV points
- Decent plot and rear garden ripe for landscaping or extension (subject to consent)
- Excellent transport links: Jubilee line and Harrow & Wealdstone nearby
- Close to well-rated primary and secondary schools and local amenities
- Property requires full refurbishment throughout; budget for works
- Single bathroom serving three bedrooms; may require reconfiguration
- Council tax band above average for the area
Set on a quiet residential street in Stanmore, this three-bedroom freehold offers roomy living and clear potential for improvement. Large double-glazed windows fill the principal rooms with light and the practical layout includes a generous living room that opens onto a private rear garden. A detached outbuilding/garage and off-street parking add useful storage and convenience.
The house is a renovation opportunity — an ideal project for a family seeking to personalise a home or an investor aiming to add value. The plot is a decent size, allowing for garden landscaping or an extended footprint subject to consent. Integrated TV and data points and excellent mobile and broadband connectivity suit modern working-from-home needs.
Location is a major strength: quick access to Canons Park (Jubilee) and Harrow & Wealdstone stations makes commuting straightforward, while a lively local centre with shops, cafes and amenities is only minutes away. Several well-rated primary and secondary schools are close by, supporting family life.
Notable drawbacks are honest and material: the property needs renovation throughout, there is only one bathroom for three bedrooms, and council tax is above average. Buyers should budget for refurbishment costs and consider timescales for any planned upgrades.
3 bedroom semi-detached house for sale in Felbridge Avenue, Stanmore, HA7 — £600,000 • 3 bed • 2 bath • 891 ft²
4 bedroom semi-detached house for sale in Stanmore Hill, Stanmore, HA7 — £825,000 • 4 bed • 2 bath • 2056 ft²
5 bedroom detached house for sale in Winscombe Way, Stanmore, HA7 — £1,000,000 • 5 bed • 2 bath • 1938 ft²
3 bedroom detached house for sale in Daventer Drive, Stanmore, HA7 — £575,000 • 3 bed • 1 bath • 915 ft²
3 bedroom detached house for sale in Silverston Way, Stanmore, Middlesex, HA7 — £1,100,000 • 3 bed • 2 bath • 1788 ft²
3 bedroom semi-detached house for sale in Bromefield, Stanmore, HA7 — £575,000 • 3 bed • 1 bath • 856 ft²










































