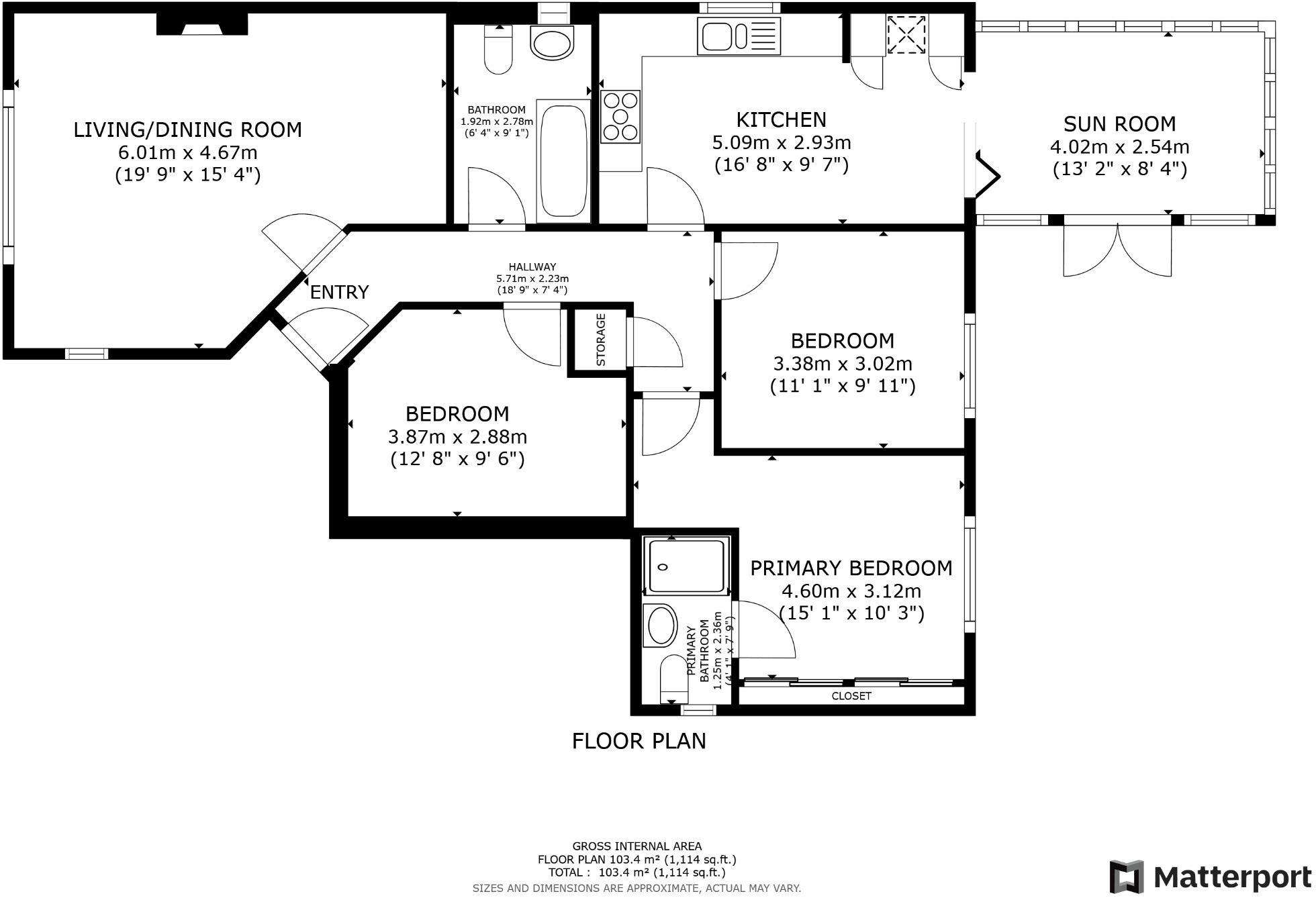
Turn-key three-bedroom bungalow moments from the seafront and town centre..
- Detached, newly renovated three-bedroom bungalow
- South-east facing garden; sun all day, two seating areas
- Modern gloss kitchen with integrated appliances
- Spacious living room; bifold doors to conservatory
- Driveway parking plus garage for storage or parking
- Built c.1950–1966; some original elements possible
- Double glazing present; installation date unknown
- Freehold and chain-free, ready for a quick sale
Set on a sought-after street in South Shields, this three-bedroom detached bungalow offers instant, turn-key coastal living moments from the seafront and town centre. The property has been newly renovated and presents a modern kitchen with integrated appliances, a spacious living room and a versatile conservatory opened by bifold doors to extend the family space.
All three bedrooms are double-size, two with fitted storage (one with full wall wardrobes). The home benefits from a south-east facing rear garden that soaks up sun all day, private driveway parking and a garage. Heating is mains gas with boiler and radiators, and the house is double glazed (install date unknown).
This is a strong choice for families or downsizers seeking a single-storey, low-maintenance home in a very affluent, low-crime neighbourhood close to good schools, amenities and the coast. Note the building dates from the 1950s–1960s, and while recently renovated, some original elements may remain; glazing install dates are not specified.
3 bedroom semi-detached house for sale in Bamburgh Avenue, South Shields, Tyne and Wear, NE34 6SS, NE34 — £205,000 • 3 bed • 1 bath • 923 ft²
3 bedroom bungalow for sale in Redwell Court, Marsden, South Shields, Tyne and Wear, NE34 7JY, NE34 — £339,950 • 3 bed • 1 bath • 1132 ft²
3 bedroom semi-detached house for sale in Allendale Drive, South Shields, Tyne and Wear, NE34 7SX, NE34 — £260,000 • 3 bed • 2 bath • 921 ft²
3 bedroom semi-detached house for sale in Bideford Gardens, South Shields, NE34 — £220,000 • 3 bed • 1 bath • 799 ft²
4 bedroom detached house for sale in Callum Drive, South Shields, NE34 — £349,995 • 4 bed • 3 bath • 1389 ft²
4 bedroom bungalow for sale in Fairholme Avenue, South Shields, Tyne and Wear, NE34 6DB, NE34 — £385,000 • 4 bed • 2 bath














































































































































































































