Private south-facing garden close to beaches and village amenities.
Chain-free four-bedroom detached home ready to move into
South-facing, private landscaped garden with decking and play area
Garage plus driveway parking for two vehicles
Modern fitted kitchen, utility and two reception rooms
EPC B; gas central heating and UPVC double glazing
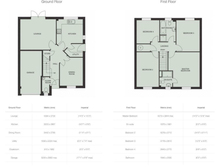
Total internal area approx. 1,028 sq ft — modest for four beds
Above-average local crime and above-average council tax
Located within walking distance to beaches and local schools
Set on a sought-after modern development just a short walk from Porthpean, Duporth and Charlestown beaches, this four-bedroom detached house offers well-presented family space with garage and private south-facing garden. The home is cleanly finished throughout with modern kitchen, two reception rooms and useful utility room, so it is ready to move into with no major work required. Chain-free sale supports a straightforward purchase.
Accommodation is arranged over two floors and totals about 1,028 sq ft, with four double bedrooms including an en-suite to the master, plus a family bathroom. The ground floor provides a lounge with French doors to the landscaped garden and a second reception room currently used as an office/playroom — flexible space for family life. Heating is gas central heating with boiler and radiators; the property benefits from UPVC double glazing and an EPC rating of B.
Outside, the south-facing rear garden is level, private and low-maintenance with artificial lawn, large decked seating area, play features and gated side access. A garage with power and a driveway for two cars add practical parking and storage. The location is convenient for local schools (including an Outstanding secondary), St Austell town centre, mainline rail and attractions such as the Eden Project.
Buyers should note the property sits in an area classed as an ageing urban community with above-average local crime statistics and above-average council tax. The overall internal size is modest for a four-bedroom detached home, which may affect layout expectations. Broadband and mobile signal are strong, and there is no known flood risk.
4 bedroom detached house for sale in Aglets Way, Near Charlestown, PL25 — £350,000 • 4 bed • 2 bath • 1063 ft²
4 bedroom semi-detached house for sale in Aglets Way, St. Austell, PL25 — £325,000 • 4 bed • 2 bath • 889 ft²
4 bedroom semi-detached house for sale in Pellymounter Road, St. Austell, PL25 — £375,000 • 4 bed • 3 bath • 1313 ft²
4 bedroom detached house for sale in Rope Walk, Duporth, Nr Charlestown, PL26 — £500,000 • 4 bed • 2 bath • 1313 ft²
3 bedroom semi-detached house for sale in Carnjewey Way, St. Austell, PL25 — £325,000 • 3 bed • 2 bath • 681 ft²
4 bedroom detached house for sale in Retallick Meadows, St. Austell, PL25 — £375,000 • 4 bed • 2 bath • 852 ft²






































































































