Executive family living with extensive entertaining spaces and secure parking.
Detached Tudor-revival house on large gated plot with private rear garden
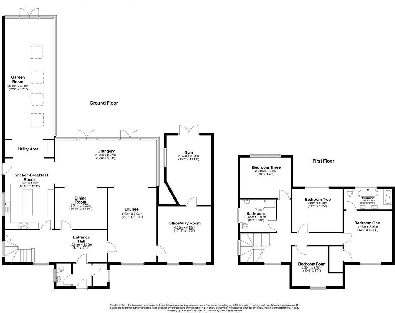
Set on a generous, gated plot in Childer Thornton, this substantial detached house blends Tudor revival character with recent high-spec upgrades. The layout is designed for modern family life, with multiple reception rooms, a large kitchen-breakfast area and a standout 10m garden room that opens directly onto private, landscaped grounds.
The ground floor offers versatile living: a formal lounge with fireplace and orangery, dining/wine cellar, a bespoke kitchen with central island, plus a dedicated home gym and office — ideal for remote working and wellness. Upstairs the principal suite includes a walk-in wardrobe and luxury four-piece en suite; three further double bedrooms share a well-appointed family bathroom.
Practical features include gated vehicular access, a block-paved driveway with turning area, detached garage, EV charging point and fast broadband. The large rear garden provides multiple seating areas and excellent privacy, making it well suited to active family life and entertaining.
Considerations: council tax is expensive for the area, and the property’s period elements and substantial footprint will require ongoing maintenance. The house is large and versatile but buyers seeking a fully modern minimal-maintenance home may want to inspect carefully to judge any cosmetic or systems updates required.
4 bedroom semi-detached house for sale in Grange Crescent, Childer Thornton, CH66 — £525,000 • 4 bed • 2 bath • 2207 ft²
4 bedroom detached house for sale in Deeside Close, Whitby, CH65 — £465,000 • 4 bed • 2 bath • 1919 ft²
4 bedroom detached house for sale in School Lane, Childer Thornton, Ellesmere Port, CH66 — £500,000 • 4 bed • 2 bath • 1761 ft²
4 bedroom detached house for sale in Chenotrie Garden, Noctorum, Wirral, CH43 — £1,250,000 • 4 bed • 2 bath • 4000 ft²
4 bedroom detached house for sale in The Cottage, Oakfield Road, Childer Thornton, CH66 — £600,000 • 4 bed • 1 bath • 1948 ft²
6 bedroom detached house for sale in Chester, CH4 — £1,300,000 • 6 bed • 3 bath • 3603 ft²


















































































































































