Spacious three-floor living with garage, parking and attic potential close to town.
Victorian double-fronted detached house with high ceilings
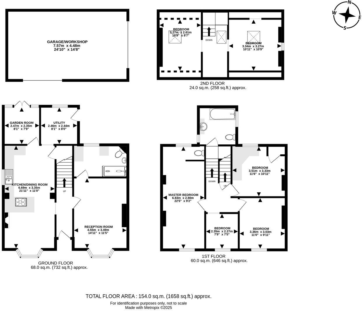
Set in the centre of Llandrindod Wells, this double-fronted Victorian detached house offers flexible family accommodation across three floors with character features and good natural light. The ground floor includes a bay-fronted reception room, a large kitchen/dining space, a utility, rear garden room/study and a convenient ground-floor shower room. Upstairs there are three double bedrooms, a single bedroom and a modern family bathroom; two attic rooms on the second floor provide scope for extra bedrooms or a home office.
Practical benefits include generous off-road parking, a detached garage/workshop with electric roller door, light and power, and a low-maintenance courtyard garden that suits busy family life. The property is gas centrally heated via boiler and radiators and benefits from fast broadband speeds, making it suitable for home working and modern family routines.
Buyers should note this home will reward sympathetic updating. The EPC is rated E and the walls are cavity-built with no added insulation assumed, so improving thermal performance would reduce running costs. The plot is small and the courtyard provides limited outdoor space for larger garden uses. Local area indicators show very high crime and significant deprivation in parts of the wider area; purchasers should consider these factors when assessing suitability.
Overall this is a spacious, characterful home with strong potential for a family seeking central convenience and room to personalise. The garage and parking are notable assets for town-centre living, and the attic rooms give flexibility to adapt the layout to changing household needs.
6 bedroom detached house for sale in Park Road, Builth Wells, Powys, LD2 — £350,000 • 6 bed • 3 bath
4 bedroom semi-detached house for sale in Tremont Park, Llandrindod Wells, LD1 — £250,000 • 4 bed • 2 bath • 791 ft²
4 bedroom detached house for sale in Rock Park Close, Llandrindod Wells, LD1 — £350,000 • 4 bed • 1 bath • 1454 ft²
4 bedroom detached house for sale in Dyffryn Road, Llandrindod Wells, LD1 — £295,000 • 4 bed • 1 bath • 1484 ft²
3 bedroom bungalow for sale in Oxford Road, Llandrindod Wells, Powys, LD1 — £275,000 • 3 bed • 1 bath • 1464 ft²
3 bedroom semi-detached house for sale in Grosvenor Close, Llandrindod Wells, Powys, LD1 — £240,000 • 3 bed • 1 bath • 1023 ft²














































































































































































