**Standout Features:**
- Three bedrooms and two bathrooms.
- Spacious lounge with bespoke stained glass and access to a conservatory.
- Beautiful private garden, well-screened for privacy.
- Large carriage driveway and double garage with power.
- 0.27-acre plot with excellent extension potential (subject to planning).
- Located just 0.8 miles from Shenfield Station and local shopping.
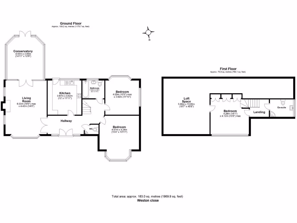
Nestled in a peaceful cul-de-sac in the desirable Hutton area, this charming detached chalet-style bungalow offers a blend of comfort and potential, perfect for families or investors. Spanning an impressive 1,969 square feet, the well-maintained interior comprises three generous bedrooms, two bathrooms, and a spacious lounge that opens onto a stunning hardwood conservatory—ideal for soaking in the serene views of the landscaped rear garden.
With a large 0.27-acre plot, this property not only provides ample outdoor space for play or relaxation but also presents exciting opportunities for further expansion and customization, subject to planning approval. The extensive carriage driveway and double garage ensure ample parking for multiple vehicles. Enjoy easy access to local amenities and highly-rated schools, making this property a perfect family haven.
Whether you're looking to settle down or make a smart investment, this property is chain-free and ready for its new owner. Don't miss this opportunity—schedule a viewing today to imagine your future in this beautiful home!
3 bedroom detached bungalow for sale in Newmans Drive, Brentwood, CM13 — £900,000 • 3 bed • 1 bath
3 bedroom bungalow for sale in Hall Green Lane, Hutton, CM13 — £800,000 • 3 bed • 3 bath • 1378 ft²
3 bedroom bungalow for sale in Leafy Way, Hutton, CM13 — £750,000 • 3 bed • 2 bath • 1281 ft²
3 bedroom bungalow for sale in Herington Grove, Hutton Mount, CM13 — £1,100,000 • 3 bed • 2 bath • 1627 ft²
4 bedroom semi-detached bungalow for sale in Delta Road, Hutton, Brentwood, CM13 — £675,000 • 4 bed • 2 bath • 1500 ft²
3 bedroom detached bungalow for sale in Burses Way, Hutton, Brentwood, CM13 — £695,000 • 3 bed • 1 bath • 1167 ft²






























































































