Chain-free, move-in-ready family home with sunny garden and garage parking.
- Four bedrooms plus study/bedroom across three floors
- Spacious open-plan kitchen/living with island and bifold doors
- South-facing landscaped low-maintenance front and rear gardens
- Master bedroom with dressing area and en-suite shower room
- Separate second lounge for quieter living or TV space
- Garage plus driveway parking for multiple cars; off-street available
- Newly renovated, full double glazing, gas central heating, full fibre
- Small plot and higher council tax; average overall internal size
This refurbished four-bedroom end-of-terrace in Fairfield Park offers a versatile family layout across three floors. The newly renovated, open-plan kitchen/living area is the social heart, with a large island, boiling-water tap and bifold doors that open onto a sunny south-facing landscaped garden. A separate lounge provides a quieter TV or study space.
The top-floor master suite includes a dressing area and en-suite shower room, creating a private retreat. The property also benefits from a garage and driveway parking for multiple cars, full-fibre broadband and gas central heating. The home is chain-free and freehold, set in a peaceful, affluent neighbourhood near good local schools and shops.
Practical points to note: the plot is small and gardens are low-maintenance rather than expansive. Council tax is described as expensive. Overall size is average for the street — comfortable for family life but without large grounds. This house suits buyers seeking a move-in-ready family home with modern fittings and good local amenities.
4 bedroom terraced house for sale in Dickens Boulevard, Fairfield, SG5 — £535,000 • 4 bed • 2 bath • 1368 ft²
3 bedroom terraced house for sale in Charlotte Avenue, Fairfield, SG5 — £425,000 • 3 bed • 2 bath • 995 ft²
4 bedroom detached house for sale in Hardy Way, Fairfield, SG5 — £650,000 • 4 bed • 2 bath • 1162 ft²
3 bedroom terraced house for sale in Middlemarch, Fairfield, SG5 — £420,000 • 3 bed • 1 bath • 842 ft²
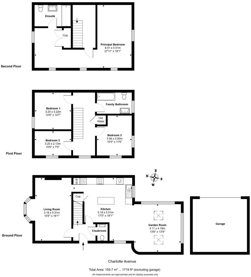
3 bedroom end of terrace house for sale in Charlotte Avenue, Fairfield, Herts SG5 4HF, SG5 — £475,000 • 3 bed • 3 bath • 1202 ft²
4 bedroom detached house for sale in Helena Crescent, Fairfield, Hitchin, SG5 — £745,000 • 4 bed • 2 bath • 1486 ft²






























































































