Modern two-bedroom retirement apartment with communal facilities and long lease in town centre.
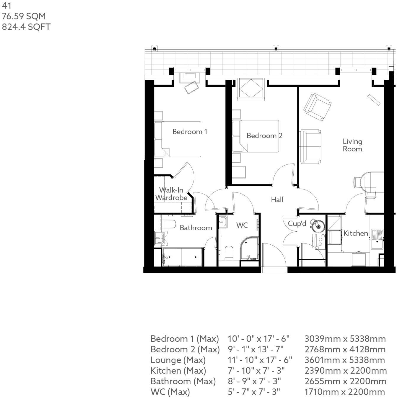
West-facing two-bedroom apartment with walk-in wardrobe in the main bedroom
Purpose-built retirement development for over‑60s with communal social spaces
On-site manager during office hours and camera entry for security
Guest suite available for visiting family or friends
Shared ownership options; examples include 50% and 75% shares
Leasehold with 985 years remaining; service charge £241 pcm (below average)
Electric room heaters (no central heating) — may increase running costs
Town-centre location close to shops, buses and amenities
Step into a newly built two-bedroom retirement apartment designed for comfortable independent living in the heart of Middlewich. Apartment 41 offers a bright living and dining area, a separate fitted kitchen, a main bedroom with a walk-in wardrobe and a second double bedroom — all arranged for practical, low‑maintenance living close to shops and services.
The development is built for the over‑60s and promotes a sociable community with a communal lounge, landscaped gardens, regular events, and an on‑site manager during office hours. Residents also benefit from a guest suite for visiting family, a camera entry system and mobility‑friendly communal facilities.
Practical points to note: the property is offered as shared ownership (examples shown for 50% and 75% shares) and is leasehold with a very long lease remaining (985 years). Heating is by electric room heaters rather than a central gas system, which may affect running costs. Service charges are quoted at £241 pcm, described as below average and covering communal maintenance and management.
This apartment suits downsizers seeking a modern, low‑upkeep home in a lively town‑centre location with on‑site support and community facilities. Shared ownership provides an accessible purchase route, though prospective buyers should confirm the percentage share options, any rent on lower shares and the full details of service charge cover.
2 bedroom retirement property for sale in 63 Wheelock Street,
Middlewich,
Cheshire,
CW10 9RL, CW10 — £157,500 • 2 bed • 1 bath • 811 ft²
1 bedroom retirement property for sale in 63 Wheelock Street,
Middlewich,
Cheshire,
CW10 9RL, CW10 — £120,000 • 1 bed • 1 bath • 545 ft²
2 bedroom apartment for sale in East Road, Middlewich, CW10 — £142,000 • 2 bed • 1 bath • 503 ft²
2 bedroom apartment for sale in Willowmere, Middlewich, CW10 — £130,000 • 2 bed • 1 bath • 527 ft²
2 bedroom apartment for sale in Townbridge Court, Northwich, CW8 — £140,000 • 2 bed • 1 bath • 678 ft²
1 bedroom apartment for sale in Middlewich Road, Sandbach, CW11 — £185,000 • 1 bed • 1 bath • 499 ft²


































