Low-maintenance two-bedroom park home near Delamere Forest, ideal for active over-50s seeking community living..
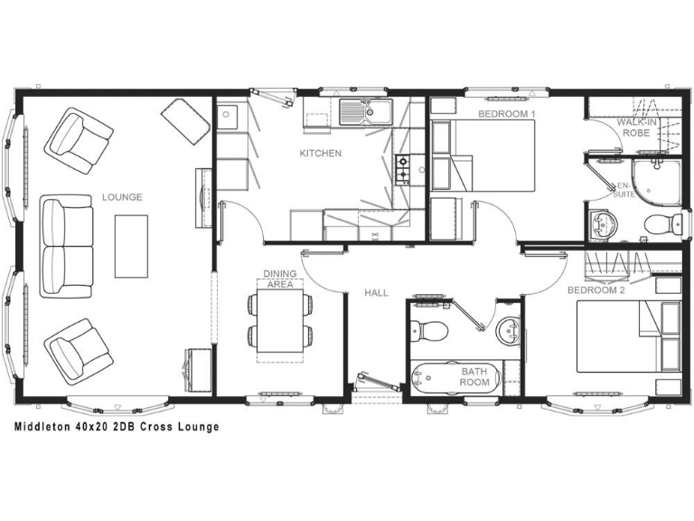
- Two bedrooms, two bathrooms in single-storey, bungalow-style layout
- Approximately 800 sq ft; easy-maintain modern interior
- Edge of Delamere Forest; bus stop outside the park
- Pet friendly and exclusive over-50s community living
- Site fee £182/month; ground rent £2,184/year (expensive)
- Virtual freehold; typically not mortgageable—seek legal advice
- Council Tax Band A (very cheap) and very low local crime
- Manufacturer images used; on-site specification may differ
This pre-owned Tingdene park home (40'x20') offers a low-maintenance, bungalow-style living option tailored for the over-50s who want easy access to countryside and community. With two bedrooms, two bathrooms and around 800 sq ft of accommodation, the modern interior and compact footprint suit downsizers seeking a simpler, single-storey lifestyle. The development sits on the edge of Delamere Forest, with a bus stop outside for direct links to Northwich and Chester.
Practical running costs include a site fee of £182 per month (reviewed annually in line with CPI) and a high ground rent of £2,184 per year; the property’s tenure is sold as virtual freehold and these homes are typically not mortgageable. Council tax is low (Band A) and the area is very affluent with very low crime, but buyers should confirm park rules, pitch lease terms and resale conditions under the Mobile Homes Act 2013 before committing.
The park is pet friendly and offers community living in a small, landscaped setting, ideal for those who want sociable but secure surroundings. The home is pre-owned and some images provided are manufacturer's show-home photos and may not exactly match the on-site specification; buyers should inspect the actual unit to assess condition and any optional extras.
2 bedroom park home for sale in Northwich, Cheshire, CW8 — £199,995 • 2 bed • 2 bath • 800 ft²
2 bedroom park home for sale in Northwich, Cheshire, CW8 — £99,995 • 2 bed • 2 bath • 520 ft²
1 bedroom park home for sale in Delamere Road, Norley, Frodsham, WA6 — £180,000 • 1 bed • 1 bath • 588 ft²
2 bedroom park home for sale in Delamere Road, Norley, Frodsham, WA6 — £159,950 • 2 bed • 1 bath • 636 ft²
2 bedroom park home for sale in Winsford, Cheshire, CW7 — £232,000 • 2 bed • 2 bath
2 bedroom park home for sale in Dalefords Lane, Northwich, CW8 — £75,000 • 2 bed • 1 bath














