Semi-rural plot with approved plans to become a four-bedroom family home.
Two double bedrooms with generous L-shaped living/dining space
Bollin View is a detached two-double-bedroom bungalow set on a very large mature plot on the semi-rural edge of Wilmslow. The house offers immediate comfort with a generous L-shaped living/dining room, fitted kitchen and well-tended front and rear gardens, plus driveway and attached garage. It is offered freehold with no onward chain.
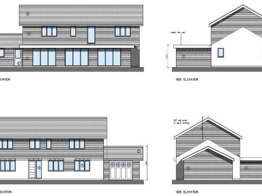
The standout value here is development potential: two existing Cheshire East permissions (25/0252/CLPUD and 24/2254M) allow either a ground-floor extension or the addition of a further storey to create a four-bedroom detached family home. For buyers seeking extra space or a resale uplift, the site and permissions significantly reduce the lead time and risk associated with extension projects.
Practical considerations are clear and factual. Heating is oil-fired via a boiler and radiators; the property uses a septic tank; broadband speeds are slow; and the area records above-average crime. Energy performance is modest (EPC reported as E in summary data) and council tax is high (Band F). These features affect running costs and should be weighed against the redevelopment upside.
This property will suit buyers who value semi-rural outlooks and sizable gardens and who are prepared to invest in renovation or extension. It also appeals to developers or families wanting a ready-planned route to a larger four-bedroom home close to Wilmslow’s amenities and transport links.
3 bedroom detached bungalow for sale in Mobberley Road, Wilmslow, SK9 — £825,000 • 3 bed • 2 bath • 1961 ft²
2 bedroom detached bungalow for sale in Ashford Road, Wilmslow, SK9 — £595,000 • 2 bed • 2 bath • 1151 ft²
3 bedroom detached house for sale in Cobbetts Way, Wilmslow, SK9 — £649,000 • 3 bed • 2 bath • 1679 ft²
3 bedroom detached bungalow for sale in Stanneylands Drive, Wilmslow, SK9 — £525,000 • 3 bed • 1 bath • 1361 ft²
3 bedroom detached house for sale in Whitehall Close, Wilmslow, SK9 — £749,500 • 3 bed • 2 bath • 1795 ft²
2 bedroom bungalow for sale in Ashford Road, Wilmslow, Cheshire, SK9 — £600,000 • 2 bed • 1 bath • 1329 ft²


















































