SE25 6AA - 1 bedroom flat for sale in South Norwood Hill, London, SE25

View on Property Piper

1 bedroom flat for sale in South Norwood Hill, London, SE25

Summary - 15 FLAT 6 SOUTH NORWOOD HILL LONDON SE25 6AA

1 bed 1 bath Flat

Compact, bright one-bedroom conversion with parking and long lease — vacant chain-free.
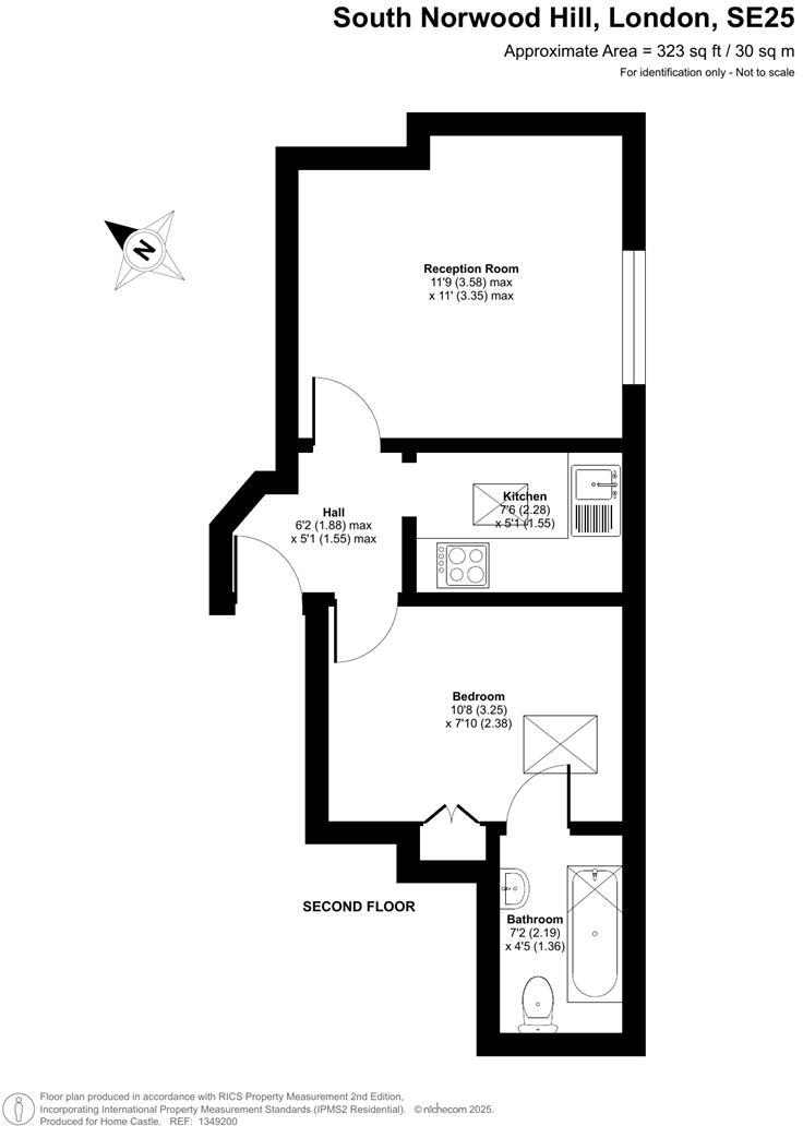
Second-floor one-bedroom conversion flat, approx. 323 sq ft
A compact one-bedroom second-floor conversion on South Norwood Hill, offered vacant with no onward chain. The flat feels bright thanks to dormer/skylight windows and high ceilings, and includes a fitted kitchen, modern bathroom, and built-in bedroom storage. An allocated parking space and communal garden add practical outside space in a convenient location.

This property suits a first-time buyer or buy-to-let investor seeking an affordable entry into SE25. The long lease (approx. 199 years from 1990) and council tax band B are positive ownership features. Norwood Junction BR/Overground is within easy reach for commuter journeys, while local amenities, parks and Crystal Palace are nearby.

Buyers should note notable running costs: an annual service charge around £2,600 (includes building insurance) and ground rent of £200. Heating is by electric room heaters and the property has double glazing, but the building's original solid brick walls likely lack insulation.

The flat is small (approx. 323 sq ft) and best suited for a single occupant or couple. Early viewing is recommended to assess space and heating comfort; purchasers are advised to obtain professional surveys for insulation, wiring and energy considerations.

Property Details

Brochure Descriptions

Image Descriptions

Floorplan Description

Rooms

Textual Property Features

Target Audience

AI Tags

Detected Visual Features

EPC Details

Nearby Schools

Nearest Bars And Restaurants

,,,,}

Nearest General Shops

,,}

Nearest Grocery shops

,,}

Nearest Supermarkets

,,}

Nearest Religious buildings

,,}

Nearest Medical buildings

,,,}

Nearest Airports

,,}

Nearest Leisure Facilities

,,,,}

Nearest Tourist attractions

,,}

Nearest Train stations

,,,,}

Nearest Bus stations and stops

,,,,}

Nearest Hotels

,,}

Tags

Local Market Stats

AirBnB Data

Similar Properties

Meta

High Res Images

Compatible Images

Low res Images

Thumbnails

Raw Images

High Res Floorplan Images

Compatible Floorplan Images

Low res Floorplan Images

FloorplanImages Thumbnail

Raw Floorplan Images