Low‑maintenance two-bed retirement apartment with 24/7 estate manager and onsite bistro.
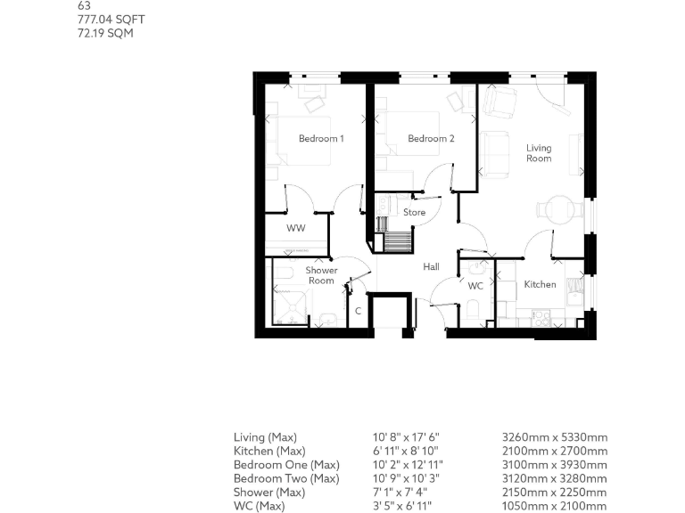
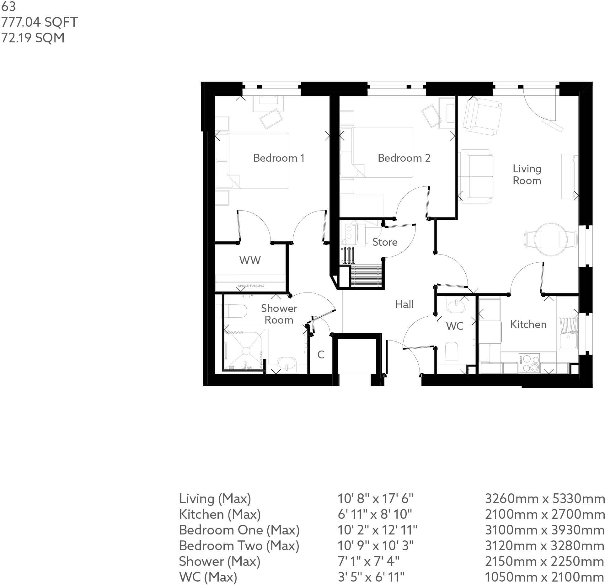
Second-floor, dual-aspect two-bedroom apartment with French balcony
Apartment 63 at Market House is a contemporary two-bedroom retirement home designed for low-maintenance, comfortable living. Located on the second floor of a 2022 build, the dual-aspect layout gives a bright open-plan living, dining and kitchen area plus two well-proportioned bedrooms — the main bedroom includes fitted wardrobes. A French balcony and landscaped communal gardens provide easy access to fresh air and a pleasant outlook.
The development is purpose-built for over-70s, with an on-site estate manager available 24/7, optional personal care and support, and a resident bistro and stylish lounge for socialising. These facilities suit buyers wanting an active community with help available when needed. Modern construction and an energy-efficient SAP rating (up to 79) mean lower maintenance and better running performance than older retirement stock.
Practical points to note: the property is leasehold (999 years remaining) and uses electric room heaters as the main heating source, which can be more costly than central systems. Broadband speeds are reported slow, which may affect streaming or heavy online use. The apartment is north-facing, so it receives less direct sun than south-facing homes.
Overall, this apartment will suit a downsizer or retiree seeking a modern, low-upkeep home within easy walking distance of shops, cafes and local amenities, with built-in community and care options on hand.
1 bedroom retirement property for sale in Market House,
17 Ensor Mews,
Wimborne,
Dorset,
BH21 1WW, BH21 — £275,000 • 1 bed • 1 bath • 541 ft²
2 bedroom retirement property for sale in Market House,
17 Ensor Mews,
Wimborne,
Dorset,
BH21 1WW, BH21 — £300,000 • 2 bed • 1 bath • 777 ft²
1 bedroom retirement property for sale in Market House,
17 Ensor Mews,
Wimborne,
Dorset,
BH21 1WW, BH21 — £400,000 • 1 bed • 1 bath • 597 ft²
1 bedroom retirement property for sale in Market House,
17 Ensor Mews,
Wimborne,
Dorset,
BH21 1WW, BH21 — £400,000 • 1 bed • 1 bath • 597 ft²
2 bedroom retirement property for sale in The Old Market Gardens,
Wimborne,
Dorset,
BH21 1WU, BH21 — £510,000 • 2 bed • 1 bath • 1207 ft²
2 bedroom apartment for sale in East Borough, Wimborne, Dorset, BH21 — £475,000 • 2 bed • 2 bath • 991 ft²


































































