Victorian end-terrace with bay windows and period character
Three good-sized bedrooms across first floor, two reception rooms
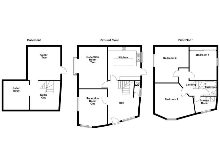
Large kitchen with central island and downstairs WC
Three spacious cellar rooms — significant storage or conversion potential
Off-road parking plus direct access to garage
Leasehold tenure; confirm lease length and charges
EPC D and likely uninsulated cavity walls; energy upgrades probable
Located in a deprived area; local amenities and commuter links close
A spacious three-bedroom end-terrace arranged over three floors, this Victorian corner house offers generous living space for families. Two large reception rooms and a sizeable kitchen with island provide flexible ground-floor living and entertaining space. The property includes three cellar rooms that offer substantial storage or scope for conversion (professional checks advised).
Practical features include off-road parking and an attached garage, plus two bathrooms and a downstairs WC to ease busy mornings. The house sits close to local amenities, schools rated Good, and has easy access to major commuter routes—suitable for family life and commuters alike.
Buyers should note the home is leasehold, has an EPC rating of D and cavity walls likely without insulation, so energy-upgrade work could be needed. The property shows character typical of 1900–1929 construction but may require modernisation of heating and fabric to improve efficiency. The area is relatively deprived; viewings are essential to assess condition and potential.
Taken at the right price, this is a generous family home with period charm, strong scope for improvement and useful parking and garage facilities.
3 bedroom terraced house for sale in Coronation Street, Great Harwood, BB6 — £160,000 • 3 bed • 1 bath • 906 ft²
3 bedroom end of terrace house for sale in Longshaw Lane, Blackburn, BB2 — £160,000 • 3 bed • 1 bath • 1354 ft²
3 bedroom terraced house for sale in Cattle Street, Great Harwood, Blackburn, Lancashire, BB6 — £130,000 • 3 bed • 1 bath • 819 ft²
3 bedroom terraced house for sale in Limes Avenue, Darwen, Lancashire, BB3 — £260,000 • 3 bed • 2 bath • 1658 ft²
4 bedroom semi-detached house for sale in Blackburn Road, Great Harwood, Blackburn, BB6 — £225,000 • 4 bed • 2 bath • 1747 ft²
3 bedroom terraced house for sale in Manchester Road, Accrington, BB5 — £230,000 • 3 bed • 2 bath • 1249 ft²










































































































































































































































