**Standout Features:**
- Newly constructed semi-detached home set over three floors.
- Anticipated completion in Q4 2025.
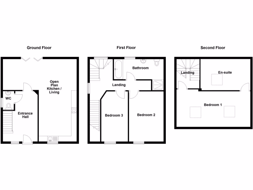
- Spacious layout with 3 bedrooms and 2 bathrooms.
- Modern open plan living and dining area.
- Off-road parking for 2 cars.
- Large corner plot in a desirable area.
- Close proximity to local amenities and outdoor activities.
**Potential Concerns:**
- Small plot size may limit outdoor space.
- Local area classification indicates potential challenges.
Discover your dream family home in the highly sought-after Redvales area of Bury, set to be completed by the end of 2025. This beautifully designed three-storey semi-detached house features an open-plan living and dining area that welcomes plenty of natural light, creating an inviting space for family gatherings. Enjoy the luxury of two spacious double bedrooms, a family bathroom on the first floor, and a dedicated master suite with an en-suite on the top level.
Perfect for families, this property offers off-road parking for two vehicles and is backed by a wealth of local conveniences, including shops, schools, and easy access to scenic walks at Elton Reservoir. With modern, energy-efficient finishes and an appealing design, these newly built homes are an unmissable opportunity! Given the anticipated demand for these gorgeous residences, early reservations are strongly encouraged to secure your spot in this vibrant community. Don’t wait—reserve your ideal home today!
3 bedroom semi-detached house for sale in Ribchester Drive, Bury, Greater Manchester, BL9 — £320,000 • 3 bed • 3 bath
3 bedroom end of terrace house for sale in Walmersley Old Road,
Walmersley,
Bury,
BL9 6SB, BL9 — £328,000 • 3 bed • 1 bath • 697 ft²
4 bedroom detached house for sale in Mather Road, Bury, BL9 — £525,000 • 4 bed • 3 bath • 2449 ft²
3 bedroom detached house for sale in Roedeer Gardens, Seedfield, Parkinson Street, Bury, Greater Manchester, BL9 6NY, BL9 — £329,950 • 3 bed • 2 bath • 932 ft²
3 bedroom terraced house for sale in Walmersley Old Road,
Walmersley,
Bury,
BL9 6SB, BL9 — £324,000 • 3 bed • 1 bath • 697 ft²
3 bedroom semi-detached house for sale in Edstone Grange, Heywood, Lancashire, OL10 — £245,000 • 3 bed • 2 bath • 881 ft²






























