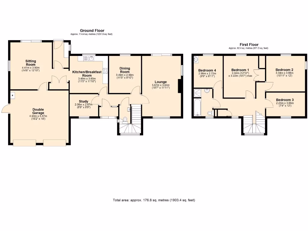
Chain‑free 4‑bed detached house on large plot with garage and wraparound garden.
Double garage plus driveway parking for two cars
South‑east facing large rear garden, wraps around property
Four bedrooms with flexible reception layout for families
Chain free sale for a quicker move
EPC rating D — scope to improve energy efficiency
Sandstone walls assumed uninsulated; insulation recommended
Single family bathroom only — consider adding en‑suite/extra WC
Built 1960s; presents refurbishment and modernization potential
An individually built 1960s detached house on Kings Lane offering roomy, flexible accommodation for family life. Set on just under 0.20 acres, the plot includes a generous south‑east facing garden that wraps around the house and a double garage with driveway parking — plenty of outdoor space for children, gardening and entertaining.
The ground floor provides multiple reception rooms and a kitchen‑breakfast room, allowing separate living, dining and study areas to suit modern family routines. Four first‑floor bedrooms serve the home, making it adaptable for families needing space for work‑from‑home, hobbies or guests. The property is offered chain free, which simplifies a straightforward move.
Practical realities are clear: the house dates from the 1960s and shows scope for updating. Energy performance is D and external sandstone walls are recorded with no insulation assumed — adding insulation and modern heating improvements would both reduce running costs and increase comfort. There is a single family bathroom, so buyers needing multiple bathrooms should factor that in.
Located in a very affluent, quiet village setting with good local schools and amenities nearby, the house suits growing families wanting space and privacy while being within reach of town fringe services. Broadband and mobile signals are average in the area.
3 bedroom house for sale in Birch Drive, Pucklechurch, Bristol, BS16 9RW, BS16 — £310,000 • 3 bed • 1 bath
4 bedroom semi-detached house for sale in Kestrel Drive, Pucklechurch, Bristol, BS16 — £400,000 • 4 bed • 2 bath • 1038 ft²
5 bedroom detached house for sale in Westerleigh Road, Pucklechurch, Bristol, BS16 — £700,000 • 5 bed • 3 bath • 1518 ft²
3 bedroom semi-detached house for sale in Abson Road, Pucklechurch, BS16 — £425,000 • 3 bed • 1 bath • 1057 ft²
3 bedroom semi-detached house for sale in Birch Drive, Pucklechurch, Bristol, Gloucestershire, BS16 — £325,000 • 3 bed • 1 bath • 1198 ft²
3 bedroom end of terrace house for sale in Hawthorn Close, Pucklechurch, Bristol, BS16 9SZ, BS16 — £290,000 • 3 bed • 1 bath • 862 ft²






























































































