TR7 2HS - 3 bed modern three bedroom home in St Austell And Newquay,…

View on Property Piper

3 bedroom semi-detached house for sale in Trevemper Road, Newquay, Cornwall, TR7

Summary - GANNEL SERVICE STATION, TREVEMPER ROAD TR7 2HS

3 bed 2 bath Semi-Detached

Spacious new-build semi with garage and large private garden for families or first buyers.
- New-build three-bedroom semi-detached house
- Modern kitchen with gas hob and neutral finishes
- Enclosed rear garden on a very large plot
- Single garage plus off-road parking
- No flood risk; low local crime
- Nearby primary and secondary schools rated Good and Outstanding
- Slow broadband speeds and average mobile signal
- Freehold tenure; council tax band not specified
A newly built three-bedroom semi-detached house on Trevemper Road offering contemporary living across multiple storeys. The property features a modern fitted kitchen with gas hob, a spacious lounge, and a family bathroom, all finished to a clean, neutral specification suited to immediate occupation.

Outside, the house sits on a very large plot with an enclosed rear garden, single garage and off-road parking. Located in Newquay with low local crime and no flood risk, it sits close to primary and secondary schools rated Good and Outstanding, making it convenient for families and first-time buyers.

Practical considerations include slow broadband speeds and average mobile signal in the area. Tenure is freehold and council tax banding is not specified. Overall, this new-build home offers a modern, low-maintenance option with scope to use the large plot for future changes subject to permissions.

Property Details

Image Descriptions

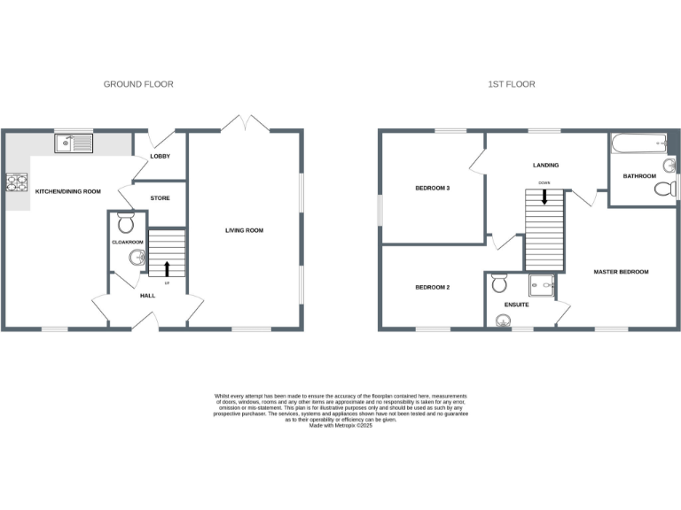
Floorplan Description

Rooms

Textual Property Features

Target Audience

AI Tags

Detected Visual Features

Nearby Schools

Nearest Bars And Restaurants

,,,,}

Nearest General Shops

,,}

Nearest Grocery shops

,,}

Nearest Supermarkets

,,}

Nearest Religious buildings

,,}

Nearest Medical buildings

,,,}

Nearest Leisure Facilities

,,,,}

Nearest Tourist attractions

,,}

Nearest Train stations

,,,,}

Nearest Bus stations and stops

,,,,}

Nearest Hotels

,,}

Tags

Local Market Stats

AirBnB Data

Similar Properties

Meta

High Res Images

Compatible Images

Low res Images

Thumbnails

Raw Images

High Res Floorplan Images

Compatible Floorplan Images

Low res Floorplan Images

FloorplanImages Thumbnail

Raw Floorplan Images