Versatile investment with HMO consent and strong local letting demand.
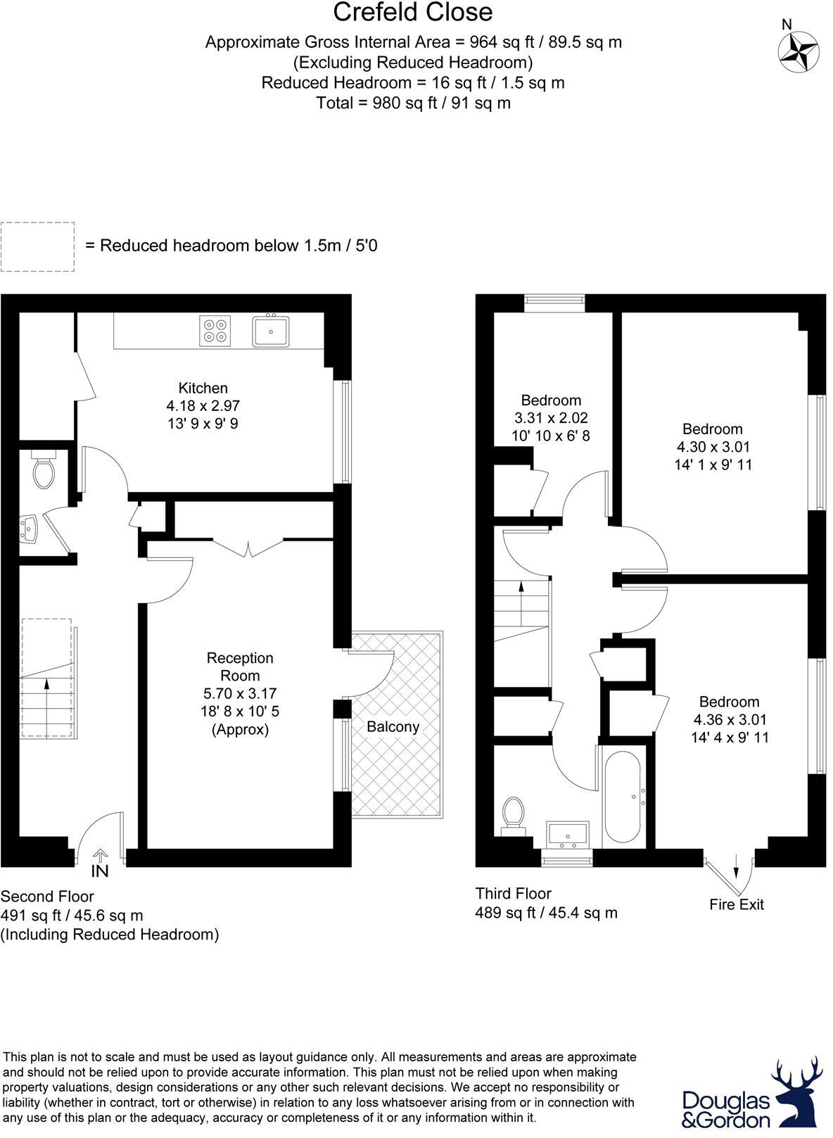
Three bedrooms, split-level layout across 980 sq ft with lift access
HMO licence for four bedrooms; proven rental yield c.10% (£4,000–£4,200 pcm)
Long lease: 179 years remaining
Off-street permit parking, communal garden and bike storage
Service charge approximately £3,000 per year; ground rent c. £10
1967–75 system-built construction; walls assumed uninsulated
Double glazing installed before 2002; community heating scheme in place
Area records above-average crime and higher deprivation indices
A bright, split-level three-bedroom apartment arranged over 980 sq ft in central Fulham — set within a purpose-built block with lift access and communal garden. The flat is currently vacant, offered with an HMO licence for four bedrooms and an advertised rental yield around 10% (£4,000–£4,200 pcm), making it well suited to buy-to-let purchasers or portfolio investors seeking immediate letting potential.
The accommodation includes an open-plan kitchen/breakfast area, a separate reception room with a private balcony, family bathroom plus an additional W/C. Practical benefits include off-street permit parking, secure bike storage, double glazing and long leasehold tenure (179 years remaining). Service charge and ground rent are modestly described (£3,000 p.a. service charge; £10 p.a. ground rent).
Buyers should note straightforward but material building details: the block is a 1967–75 system-built construction with assumed uninsulated walls and a community heating scheme. Double glazing appears to pre-date 2002. The area records above-average crime and higher deprivation indices, factors that may affect tenant demand and insurance or security considerations.
Overall this is a pragmatic investment opportunity in a well-connected Fulham location with strong transport links (Hammersmith, Barons Court, West Brompton, Parsons Green) and nearby schools. Owner-occupiers seeking a family home can consider it too, but should budget for potential thermal improvements and factor communal service costs into running expenses.
3 bedroom flat for sale in Crefeld Close, Barons Court, London, W6 — £475,000 • 3 bed • 1 bath • 943 ft²
3 bedroom flat for sale in Wandsworth Bridge Road, Fulham, London, SW6 — £795,000 • 3 bed • 2 bath • 1250 ft²
3 bedroom flat for sale in Lillie Road, London, SW6 — £825,000 • 3 bed • 2 bath • 1000 ft²
3 bedroom flat for sale in Clem Attlee Court, Fulham, SW6 — £550,000 • 3 bed • 1 bath • 809 ft²
4 bedroom apartment for sale in Barclay Close, Cassidy Road, London, SW6 — £550,000 • 4 bed • 2 bath • 750 ft²
3 bedroom flat for sale in Clem Attlee Court, Fulham, SW6 — £475,000 • 3 bed • 1 bath • 1000 ft²






















































