**Standout Features:**
- Charming three-bedroom semi-detached house
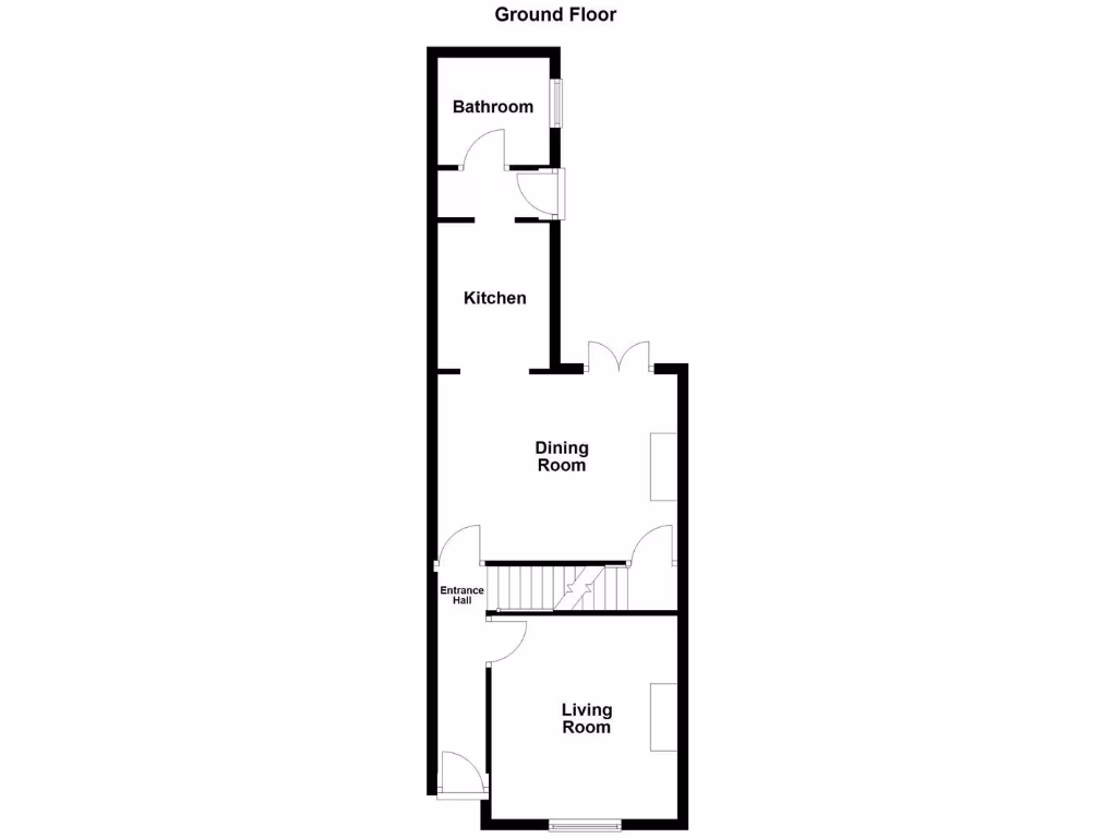
- Spacious living and dining areas with period features
- Modern galley kitchen with integrated appliances
- Enclosed rear garden ideal for outdoor entertaining
- Detached garage plus off-road parking for three vehicles
- Conveniently located near Normanton town center with excellent transport links
- EPC Rating: D61, ensuring energy efficiency
- Ideal for families, first-time buyers, or investors
**Summary Description:**
Discover a delightful three-bedroom semi-detached house just outside Normanton town center, boasting a blend of traditional architecture and modern comforts. Inside, you’ll find a warm and inviting living room featuring a decorative fireplace, a dining room with French doors leading to the charming enclosed garden, perfect for summer barbecues and family gatherings. The newly-appointed galley kitchen showcases sleek cabinetry and integrated appliances, catering to all culinary needs.
Upstairs, three generously sized bedrooms promise restful nights, while the modern bathroom provides a bright and clean atmosphere. This property is not just a home but a lifestyle opportunity, ready to welcome families or prospective investors looking to tap into its rental potential. The convenient location offers easy access to local amenities, schools, and transport links, with the M62 just moments away.
With a council tax band A and fast broadband available, this property is designed for comfort and practicality. Don't miss your chance to view this appealing home—an early inspection is highly recommended to avoid disappointment!































































