Deceptively spacious 3-bed bungalow in quiet cul‑de‑sac — no chain, parking and garden.
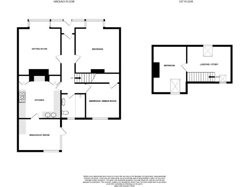
Three bedrooms including upstairs study/bedroom (flexible use)
Single shower room only; one bathroom for three bedrooms
Double glazing and gas central heating; EPC C
Off‑street parking for two cars on private driveway
Decent rear garden; low‑maintenance outdoor space
No onward chain; freehold with £100 annual service charge
Mid‑20th century solid brick construction; potential to modernise
Quiet cul‑de‑sac close to town, seafront and mainline station
Set back in a quiet private road just a short walk from Deal town centre and the seafront, this deceptively spacious semi‑detached bungalow offers practical single‑storey living with flexible accommodation. The main living room enjoys good natural light, there’s a garden room that extends the footprint, and an upstairs study leads to a third bedroom — useful as a home office or guest room.
The bungalow is double glazed, has mains gas central heating and an EPC rating of C, reflecting reasonable energy performance for its age. A paved driveway provides off‑street parking for two cars and the rear garden is a decent, low‑maintenance plot — attractive to downsizers or buyers wanting room for container gardening or a small patio.
Accommodation is largely well maintained but broadly traditional in finish; modest updates would modernise the kitchen and shower room and would likely add value. Note the layout includes a split level (stairs to study and upstairs bedroom) and only one shower room, which may suit singles, couples or small families but could limit larger households.
Practical benefits include freehold tenure, no onward chain for quicker completion and a low annual maintenance/endowment fee of £100. The property’s mid‑20th century construction and cavity walls provide a solid base for anyone wanting to personalise the space rather than undertake major structural works.
3 bedroom detached bungalow for sale in King Edward Road, Deal, CT14 — £425,000 • 3 bed • 1 bath • 893 ft²
1 bedroom bungalow for sale in Gilham Grove, Deal, CT14 — £289,950 • 1 bed • 1 bath • 912 ft²
2 bedroom bungalow for sale in Toll Gate, Deal, Kent, CT14 — £400,000 • 2 bed • 1 bath • 999 ft²
2 bedroom detached bungalow for sale in Deal, CT14 — £450,000 • 2 bed • 1 bath • 1147 ft²
2 bedroom semi-detached bungalow for sale in Athelstan Place, Deal, Kent, CT14 — £350,000 • 2 bed • 1 bath • 625 ft²
2 bedroom bungalow for sale in Tormore Park, Deal, CT14 — £297,500 • 2 bed • 1 bath • 581 ft²






























































