**Standout Features:**
- Full planning permission granted for new developments (applications lapsed)
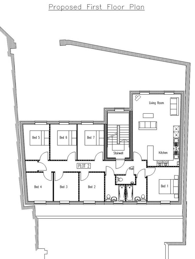
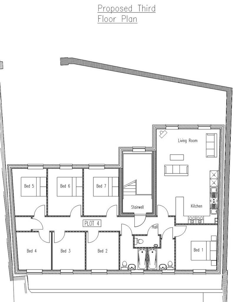
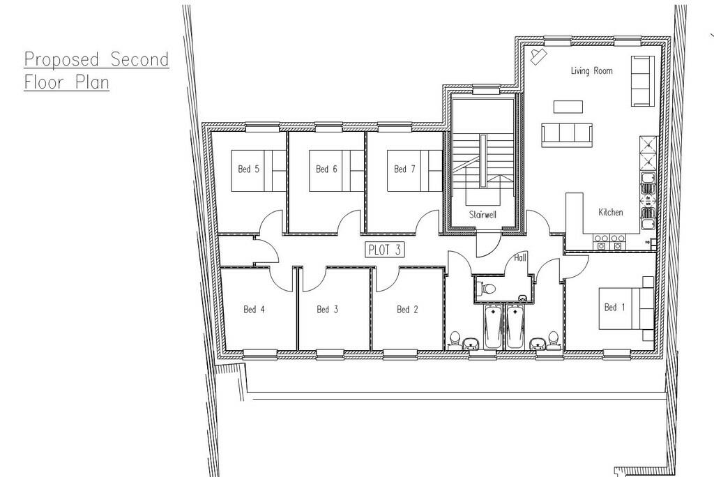
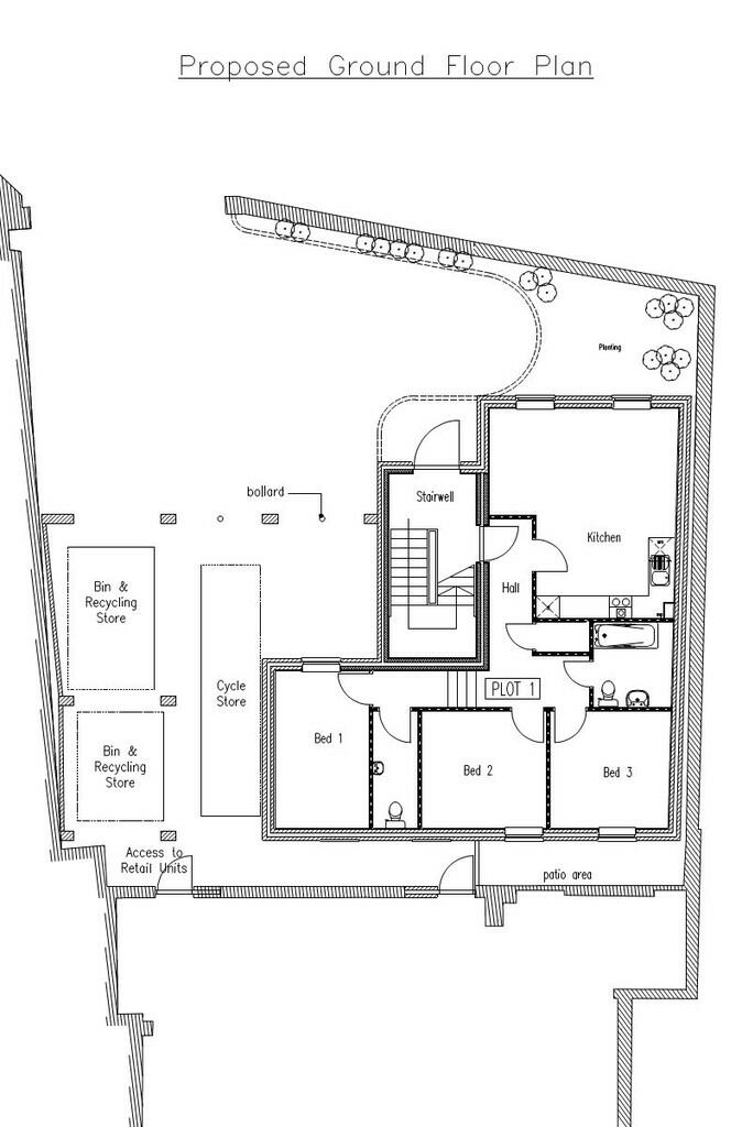
- Potential to create 24 individual rooms in 4 HMO units or 8 flats
- Centrally located near King Square, Bridgwater
- Freehold property with diverse local amenities
- Proximity to Hinkley Point C Power Station
**Concerns:**
- Existing structure will need to be demolished
- Previous planning applications have lapsed; new applications may require additional review
- Area has high crime rates and high levels of deprivation
This impressive freehold development opportunity in Bridgwater offers investors a chance to capitalize on the growing demand for housing in a town bustling with job opportunities, particularly for those employed at the nearby Hinkley Point C Power Station. Located a stone's throw from the town center, this property has full planning permission (previously lapsed) to construct either four HMO units accommodating up to 24 individual rooms or a block of 8 flats, ideal for the transitional renters looking for convenience and comfort.
While the existing single-storey building is set for demolition, the potential for urban living amidst a diverse mix of local amenities—ranging from cafes to shopping options—creates a desirable setting for future tenants. Despite the shooting crime rate and high deprivation in the area, the ongoing development in Bridgwater presents a unique opportunity for investors who can navigate the planning process and re-establish permissions. The potential for renovation and customization could yield a significant return on investment, making this a property not to be overlooked in an evolving market. Act quickly to seize this limited opportunity!
Commercial property for sale in Development Opportunity | Bridgwater, TA6 — £175,000 • 5 bed • 3 bath • 3908 ft²
Commercial development for sale in High Street, Bridgwater, Somerset, TA6 3BJ, TA6 — £400,000 • 1 bed • 1 bath • 9212 ft²
Mixed use property for sale in HMO for sale with vacant possession, 27 Wembdon Road, Bridgwater TA6 7DJ, TA6 — £425,000 • 1 bed • 1 bath • 2781 ft²
High street retail property for sale in 14-15 Cornhill, Bridgwater, Somerset, TA6 3BU, TA6 — £550,000 • 1 bed • 1 bath • 7571 ft²
Residential development for sale in Canal House, 1 Market Street, Highbridge, Somerset TA9 3BW, TA9 — £199,950 • 1 bed • 1 bath
Studio flat for sale in St. Mary Street, Bridgwater, Somerset, TA6 3LT, TA6 — £75,000 • 1 bed • 1 bath • 334 ft²


























































