**Standout Features:**
- Attractive Grade II Listed Victorian property dating back to 1800
- Mixed-use: commercial storefront on the ground floor, living/office space above
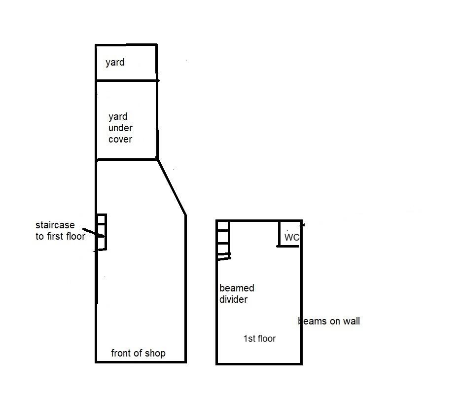
- Spacious trading area of approx. 35m² with high ceilings and extensive period charm
- Exposed timber beams on the first floor with views of Moulsham Street
- Convenient on-street parking and nearby short-term parking options
**Potential Concerns:**
- Limited access to rear yard and storage areas
- Grade II listing may complicate renovations or alterations
**Summary:**
Discover this charming Grade II Listed Victorian property located at 156 Moulsham Street, offers a unique opportunity for both investment and living. The ground floor features a spacious 35m² retail area showcasing traditional details such as high ceilings and a lovely shop front. The upper floor, with its striking exposed beams and sash window, provides a cozy 26m² living or office space, perfect for those wanting to establish their business while having a home base.
With excellent transport links to London and the vibrant amenities of Chelmsford City Centre just a short walk away, this property caters to diverse lifestyles. While the listed status may present some restrictions on renovations, the strong character and attractive location make it a highly potential investment. Whether you're a first-time buyer, a growing family desiring a unique living space, or an investor seeking rental prospects, this property is a must-see. Don’t miss out on this rare gem!
Office for sale in 121 New London Road, Chelmsford, Essex, CM2 0QT, CM2 — POA • 1 bed • 1 bath • 2210 ft²
Office for sale in 70-72 New London Road, Chelmsford, Essex, CM2 0PE, CM2 — £555,000 • 1 bed • 1 bath • 1865 ft²
Property for sale in 60 Newland Street, Witham, CM8 — £390,000 • 1 bed • 1 bath • 1576 ft²
Office for sale in 59 New Street, Chelmsford, Essex, CM1 — £725,000 • 1 bed • 1 bath • 3919 ft²
High street retail property for sale in 95 High Street, Chelmsford, Essex, CM1 1DX, CM1 — £650,000 • 1 bed • 1 bath • 3597 ft²
Commercial property for sale in Moulsham Street, Chelmsford, Essex, CM2 — £1,500,000 • 1 bed • 1 bath • 2761 ft²














































